Locust Street Addition, Philadelphia

Light Commercial / Grand

2 MIN READ

rasmussen / su
philadelphia

The judges were so smitten with the skillful insertion of this small commercial addition that they gave it one of the few Grand awards this year. “I think the idea that you [could] build a sliver of a building and make it work is cool,” one judge said.

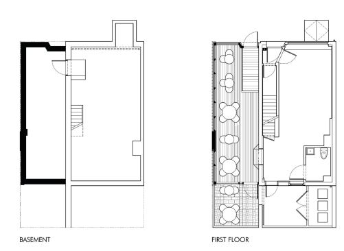
A “sliver” is an appropriate description, for the architects had only a 9½-foot site between the existing building and a community garden. On this space, the client had plans for a less ambitious one-level atrium adjoining an existing cafe, “but then it evolved into a three-story project,” says architect Kevin C. Rasmussen, AIA, LEED AP.

Rasmussen and his partner, Vivian M. Su, LEED AP, resolved the problem by designing a simple volume with an open seating area on the ground floor, and they added two more levels above that expand studio apartments into one-bedroom units.

The addition cuts a very modern figure in its historic district neighborhood, but it fits in because of its scale and use of materials. “Getting approval is a big part of the backstory,” Rasmussen recalls, adding that it was “the most complicated part of the project.”

To satisfy the neighborhood association and the Philadelphia Historical Commission, the duo used laser-cut Cor-Ten steel on the façade and specified a silver-black brick for the side and rear elevations. “The idea was that the materials would relate to each other and to the old building but still differentiate themselves,” Rasmussen explains.

“Great,” one judge called the result. “It feels like you slid this thing out, like a drawer.”


Click here to see all 2011 rada winners.

Project Credits

principals in charge / project architects: Kevin C. Rasmussen, AIA, LEED AP and Vivian M. Su, LEED AP, Rasmussen / Su
general contractor: John Hanson and Chris Hanson, Hanson General Contracting, Philadelphia
steel fabricator: Bill Curran, Bill Curran Design, Philadelphia
developer: Gibbs Connors, Philadelphia
project size: 900 square feet
site size: 0.01 acre
project cost: $250 per square foot
photography: Jeffrey Totaro Photography

product details

doors and windows: Jeld-Wen, www.jeld-wen.com; flooring (wood): Teragren, www.teragren.com; hardware: Dorma, www.dorma-usa.com, Ives, www.iveshardware.com, Sargent Lock, www.sargentlock.com; hvac equipment: Sanyo, www.sanyohvac.com; lighting fixtures: WAC, www.waclighting.com; paints/stains/wall finishes: Benjamin Moore, www.benjaminmoore.com; roofing: GAF, www.gaf.com

About the Author

Upcoming Events

  • Protecto Wall VP Standard Installation Video

    Webinar

    Register for Free
  • How Right-Sized Plumbing Saves Money, Saves Water, and Protects Wellness

    Webinar

    Register for Free
  • Building Careers from the Ground Up: The IUPAT Floor Covering Apprenticeship and Training Program

    Webinar

    Register for Free
All Events