









Ken West
Memphis Slim drew attention for his punishing performing schedul… Memphis Slim drew attention for his punishing performing schedule and unorthodox lifestyle. Extreme poverty characterized much of his life, but also created a personality that was uncommonly resourceful. The two-story volume is rebuilt on the footprint of his boyhood home.
Ken West
The two-story cedar-plank-clad volume matches the house’s dime… The two-story cedar-plank-clad volume matches the house’s dimensions. Corrugated metal on the one-story volume suggests the building’s new use as a recording studio.
Ken West
To open the building to the street, the engineer inserted a stee… To open the building to the street, the engineer inserted a steel beam in the cantilevered canopy, eliminating the need for columns. The façade’s glass mullion system was applied in front of the original framing, revealing parts of the old structure. “You can see all the way through to the recording spaces in back,” Jackson says. “It helps to activate the neighborhood in that front porch space.”
Ken West
The house’s framing reappears as interior wall framing, finish… The house’s framing reappears as interior wall framing, finishes, and furniture. A new ceremonial fireplace is made of brick salvaged from the original fireplace and chimney.
Courtesy brg3s architects
Memphis Slim’s boyhood home was unsalvageable, but its proport… Memphis Slim’s boyhood home was unsalvageable, but its proportions and materials were preserved in the new Collaboratory.
brg3s architects
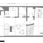
The first floor plan includes a story room that encourages commu… The first floor plan includes a story room that encourages community people to come in and record memories of their life.
Ken West
Interior framing, walls, and stairway reuse the home’s origina… Interior framing, walls, and stairway reuse the home’s original wood framing.
Ken West
The upper level contains a lounge, computer lab, and seminar and… The upper level contains a lounge, computer lab, and seminar and flex space. Low-cost memberships encourage students who graduate from the Stax Music Academy across the street to use the recording space and experiment musically without great expense.
Courtesy brg3s Architects
The Memphis Slim Collaboratory is located on the edge of a resid… The Memphis Slim Collaboratory is located on the edge of a residential area, across the street from the Stax Museum of American Soul Music and the Stax Music Academy.