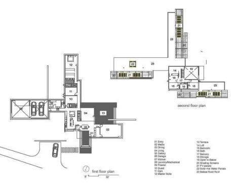
Jury Selections – First Place: Banbury House, Raleigh, N.C. Ar…
Jury Selections – First Place: Banbury House, Raleigh, N.C. Architect: John Reese, AIA, LEED AP, Weinstein Friedlein Architects Builder: Alphin Design Build Architect’s description: The owners sought a minimalist, private, and resilient environment for themselves and their houseguests that integrated modest interior spaces with an open-air exterior, including a private courtyard, lap pool, and cabana/carport. Jurors’ comments: This house displayed great rigor, from concept to detail. There is a compelling consistency to the architect’s thought. The sequence of spaces from outside to inside is choreographed with admirable restraint, using a few well-chosen materials to great effect. Layers of transparency make the house full of surprise and delight.
Mark Herboth
Mark Herboth
Mark Herboth
Mark Herboth
Mark Herboth
Jury Selections – Second Place: 1804 Pictou Road, Raleigh, N.C. …
Jury Selections – Second Place: 1804 Pictou Road, Raleigh, N.C. Architect/Builder: Mike Rantilla, AIA, LEED AP Architect’s description: The unique form of the building is a literal response to the significant site challenges. Wedged between zoning setbacks, a stream buffer, and a steep slope, the program massing was squeezed vertically into a three-story scheme. Each floor level is expressed as a discrete rectangular volume clad in a different material and spun radially from a 40-foot-tall, 18-inch-thick solid concrete shear wall. This articulation of the volumes creates a wide variety of habitable outdoor spaces. The height of the mostly transparent upper volume set within the forest canopy evokes the feeling of a tree house. Jurors’ comments: This house works well on its forest hillside site, and must be a dramatic and wonderful place to live—a mixture of structural boldness and domestic intimacy. The house has a case study quality about it. As the case studies were often influential, we expect this building will be, too.
Mark Herboth
Mark Herboth
Mark Herboth
Mark Herboth
Mark Herboth
Todd Lanning
Jury Selections – Third Place: GREENville House, Greenville, N….
Jury Selections – Third Place: GREENville House, Greenville, N.C. Architect: Vinny Petrarca, Tonic Design Builder: Tonic Construction Architect’s description: The
GREENville House/Walters Residence is composed of two primary design components: bars and panels. Each part works together to generate an environmentally sensitive response. Narrow bars branch out into the landscape to create courtyards, capture natural light, allow cross ventilation, and intersect to form a central volume of double-height public space. A structural system holding photovoltaic panels and perforated screens is responsible for creating the home’s energy and hot water while shading openings to alleviate unnecessary heat gain. Jurors’ comments: A large and ambitious house with many materials and details. Well-proportioned and vigorous, the house displays an uncommon passion for architecture. The materials and forms are stitched together like a beautiful quilt.
Todd Lanning
Todd Lanning
Todd Lanning
Todd Lanning
Todd Lanning
Adam Sebastian
Public Voting Winners – First Place: Hole One House, Clemmons, …
Public Voting Winners – First Place: Hole One House, Clemmons, N.C. Designer: Adam Sebastian Builders: Ken McDaniel & Adam Sebastian Designer’s description: Located in the Yadkin River Valley near Clemmons, N.C., Hole One House features a passive solar design and is just 20 feet wide by 67 feet long. Designed to be as hyper-efficient as the budget would allow—$85 per square foot—the home features 2×6 and 2×8 wall construction, precast concrete basement/foundation walls, and spray foam insulation, in addition to highly efficient windows, appliances, and mechanical systems. The strong backward C-shaped form that the front of the home projects is intentional and serves several functions: to mitigate the summer sun (roof), to shield the arrant golf ball from hitting south-facing windows (wall), and to create a cantilevered balcony on the exterior (floor).
Adam Sebastian
Adam Sebastian
Adam Sebastian
Adam Sebastian
Adam Sebastian
Adam Sebastian
Jacob Reinwand
Public Voting Winners – Second Place: The Althea Way House, Wil…
Public Voting Winners – Second Place: The Althea Way House, Wilmington, N.C. Designer: Scott Ogden, B+O Studio Builder: ILM Design Build Designer’s description: The clients found a “remnant” site that borders a greenbelt/bike path and requested a low-maintenance, open house for their family of five to live and grow. B+O chose to break the owners’ program into four elements to create an open courtyard in this private, sylvan setting. The owners desired a clean, simple, contemporary design working with the lot in such a way that views of the greenbelt and north terrace are always present within the house.
Jacob Reinwand
Jacob Reinwand
Jacob Reinwand
Jacob Reinwand
Jacob Reinwand
Jacob Reinwand
Jacob Reinwand
Mark Herboth and Alphin Design Build
Public Voting Winners – Third Place: Graham Street Residence, R…
Public Voting Winners – Third Place: Graham Street Residence, Raleigh, N.C. Designer/Builder: Will Alphin, Alphin Design Build Designer’s description: An overarching goal was to have the new home minimize its environmental impact, both during construction and over its planned 100-year lifetime. Sustainable, energy-efficient systems were incorporated into every aspect of the house, including the design, site orientation, mechanical systems, and materials. The building seeks to simultaneously fit within the context of the 1950s neighborhood, embrace the diverse influences of the Triangle area, utilize vernacular style and strategies appropriate for the Southern climate, and express our modern era of sustainability. Physically and metaphorically, the house carefully “hugs” a mature oak tree on the south side.
Mark Herboth and Alphin Design Build
Mark Herboth and Alphin Design Build
Mark Herboth and Alphin Design Build
Mark Herboth and Alphin Design Build
Mark Herboth and Alphin Design Build
Alphin Design Build
Out of the 19 entries in this fledgling residential design competition, six recently were awarded cash prizes totaling $6,000. The George Matsumoto Prize was created to recognize modernist single-family houses built in North Carolina in the past five years. Three winners were selected by an architectural panel while the other three honorees were ranked according to votes from more than 2,000 people. The jury of internationally renowned architects—who all create award-winning custom houses themselves—was chaired by Matsumoto, FAIA. Matsumoto helped found the architecture school at North Carolina State University and has designed several respected modernist houses throughout the state. Matsumoto was joined by Marlon Blackwell, AIA; Frank Harmon, FAIA; David Jameson, FAIA; Tom Kundig, FAIA; and Larry Scarpa, FAIA.
The jury found strong points in each of the entries and commented that “the quality and diversity of these designs indicate a healthy, vigorous climate for modern residential design in North Carolina,” They also noted what an honor it was to serve on a panel with the competition’s namesake. “His buildings are role models of clarity and strength,” said one juror, “where even the smallest detail…reflects the grace of the building as a whole.”