New Canaan, Conn., Residence

Custom Home More Than 5,000 Square Feet / Merit Award

2 MIN READ

High-end neighborhoods all over the country are struggling with the teardown issue. No one likes to see a beautiful old building gone forever—but it makes little sense to preserve a house that doesn’t work for a modern-day owner’s lifestyle.

Builder David Prutting and architect Joeb Moore hit upon an alternative solution in New Canaan, Conn. Prutting and his wife purchased a rundown house designed in the early 1950s by the Modernist architect Eliot Noyes. They lived there for a few years, experiencing firsthand its outdated layout and decrepit condition. But they loved and appreciated the pioneering spirit in which the home was designed. Prutting enlisted Moore to transform it into a residence that would conjure up the spirit of the original without all the old-house difficulties. “We wanted to keep the aura and sense of experimentation alive,” says Moore.

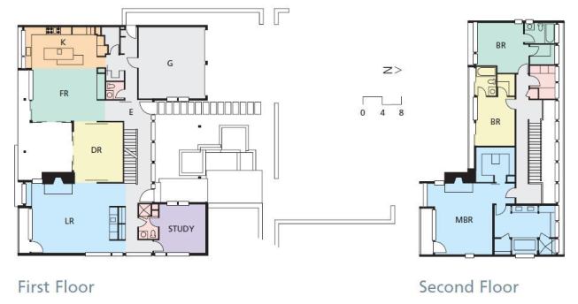
Using Noyes’ original drawings, they rebuilt the structure on its existing footprint. The new building continues the old house’s strong relationship to the outdoors and uses radiant heat, bluestone floors, and lots of glass, just like its predecessor. But its layout and systems belong to the present. Moore moved the kitchen from the lower level to the first floor, adding a new, metal-clad second floor for the bedrooms. Mahogany windows and doors, Western red cedar siding, black walnut floors, and beech veneer millwork give both interiors and exteriors a sleek yet warm look. “Conceptually it’s very similar to the old house,” says Prutting. “It uses fine products that work well and is simple in function and appearance.” The judges felt the same way. “I like that it shows respect for the original building and restraint in the details,” said one.



Project Credits:


Entrant/Builder: Prutting & Co. Custom Builders, New Canaan, Conn.
Architect: Kaehler/Moore Architects, Greenwich, Conn.
Living space: 5,400 square feet
Site: 3 acres
Construction cost: Withheld
Photographer: David Sundberg/Esto

Resources:


Bathroom/kitchen plumbing fittings: Dornbracht
Bathroom plumbing fixtures: Toto
Dishwasher: Miele
Entry doors/windows: Dynamic Window & Door
Fireplace: Rumford
Hardware: Hafele and Schlage
HVAC equipment: Carrier and Lennox
Insulation: Icynene
Interior doors: Custom-Select Door Co.
Lighting fixtures: Lightolier
Structural lumber: ParaLam.

About the Author

Upcoming Events

  • Protecto Wall VP Standard Installation Video

    Webinar

    Register for Free
  • How Right-Sized Plumbing Saves Money, Saves Water, and Protects Wellness

    Webinar

    Register for Free
  • Building Careers from the Ground Up: The IUPAT Floor Covering Apprenticeship and Training Program

    Webinar

    Register for Free
All Events