Part of a whole-house renovation, this kitchen and adjacent laun…
Part of a whole-house renovation, this kitchen and adjacent laundry room injected bold color and space-saving functionality into a challenging footprint.
Brent Haywood Photography
Built in 1898, the Emma Benjamin Lake House is registered as a S…
Built in 1898, the Emma Benjamin Lake House is registered as a San Diego Historic Home. Shown: one of three doors in the 225-square foot kitchen.
Brent Haywood Photography
The cabinets are Arclinea "Papaya Giallo" in laminate….
The cabinets are Arclinea "Papaya Giallo" in laminate. "The clients saw the color in a showroom and loved it," says designer Lisa Wilson-Wirth of Arclinea San Diego. They ditched their traditional kitchen design and started over.
Brent Haywood Photography
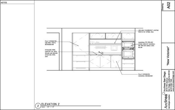
Stainless steel counters, integrated appliances, and roll-up and…
Stainless steel counters, integrated appliances, and roll-up and sliding-door storage minimize unnecessary obstruction.
Brent Haywood Photography
Two tall homeowner-chefs and ceiling heights of only 7'10" …
Two tall homeowner-chefs and ceiling heights of only 7'10" necessitated efficient space design. Upper wall units have acid-etched glass doors.
Brent Haywood Photography
Instead of the usual kitchen triangle, there are four work zones…
Instead of the usual kitchen triangle, there are four work zones: wet work, storage, cooking, and dining.
Brent Haywood Photography
Modern appliances include an integrated European espresso machin…
Modern appliances include an integrated European espresso machine and a combination steam and convection wall oven.
Brent Haywood Photography
From the double pantry (sliding doors in acid-etched glass), a p…
From the double pantry (sliding doors in acid-etched glass), a peek into the adjoining laundry area. Cabinets there are Arclinea's "Rosso Paprika" — a complementary dash of color and function.
Brent Haywood Photography
Custom, integrated dining table has stainless steel legs and a C…
Custom, integrated dining table has stainless steel legs and a CaesarStone top.
Brent Haywood Photography
The table is 36 inches high, helping it double as a work counter…
The table is 36 inches high, helping it double as a work counter. "You don't want a low counter when you're 6-feet tall," says Wilson-Wirth.
Brent Haywood Photography
Unique storage solutions include a roll-up small appliance garag…
Unique storage solutions include a roll-up small appliance garage in anodised aluminum that also provides a pull-out breakfast bar and additional work surface.
Brent Haywood Photography
The old and the new: view from Victorian parlor into kitchen.
Purchased in a foreclosure, this once-glorious stick-style Carpenter Gothic Victorian home presented more than the usual challenges, including its most recent use as a three-apartment tenement house. This phase of its renovation focused on the 225-square-foot kitchen, which was not the heart of the home but “the left elbow,” says designer Lisa Wilson-Wirth.
For instance, besides having three doorways and full-height windows on two walls, the kitchen was (and is) the sole access point to the floors above and below. The 7-foot 10-inch ceilings were problematic for the 6-foot-tall owners, who love to cook and entertain. Complicating matters, the kitchen’s petite footprint could not change.
In this gut remodel, Wilson-Wirth and contractor Tom Nardini accomplished what the judges called a “skillful insertion of the unexpected.” Instead of a kitchen triangle, there are four work zones — wet work, storage, cooking, and dining — to accommodate multiple cooks. A 36-inch-high peninsula table creates a second work counter, and sliding door pantries, a roll-up appliance garage, and a pull-out breakfast bar limit obstructions.
Judges also admired the “cool juxtaposition of materials” and “bold use of color,” including reflective products that enhance a sense of expansiveness.