Oxford, Md., Residence

Custom Home 3,000 to 5,000 Square Feet / Merit Award

1 MIN READ

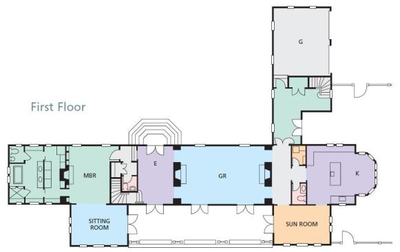
One judge’s metaphor describes the compatibility of this Maryland house with its waterfront site. “It sits like it’s lying on the beach with its toes in the sand,” he said. Muse Architects arranged the L-shaped plan so the public spaces line up parallel to the water, giving each room a prime view. The short leg of the L contains a garage and an upstairs guest suite, creating a gracious entry court at the front of the house. “The L allowed us to hide the garage from the approach to the house,” says principal Stephen Muse.

The owners, a recently retired couple, agreed the home’s architecture should defer to local building traditions. Its palette of clapboard, cedar shingles, and standing-seam copper echoes that of nearby historical buildings. So does its form, a collection of gable-roofed structures that break down the home’s scale. “You find a lot of older houses of this type in the area,” says Muse. “The main body is in the middle, and additions are made as the house ages.” He managed to make a decidedly un-traditional amount of glass on the waterfront side fit in with the home’s classic style, thanks to groupings of true divided-light windows separated only by individual shutters.

Project Credits
Entrant/Architect: Muse Architects, Washington, D.C.
Builder: West River Builders, West River, Md.
Living space: 4,600 square feet
Site: 1.24 acres
Construction cost: Withheld
Photographer: Robert C. Lautman

Resources: Bathroom plumbing fittings: Moen; Bathroom plumbing fixtures: Kohler; Fireplace: Superior; Hardware: Baldwin; Kitchen plumbing fittings: Kohler; Lighting fixtures: Lightolier; Paints: Benjamin Moore; Refrigerator: Sub-Zero; Windows: Weather Shield.

About the Author

Upcoming Events

  • Protecto Wall VP Standard Installation Video

    Webinar

    Register for Free
  • How Right-Sized Plumbing Saves Money, Saves Water, and Protects Wellness

    Webinar

    Register for Free
  • Building Careers from the Ground Up: The IUPAT Floor Covering Apprenticeship and Training Program

    Webinar

    Register for Free
All Events