OZ House, Silicon Valley, Calif.

Custom Home / More Than 5,000 Square Feet

2 MIN READ

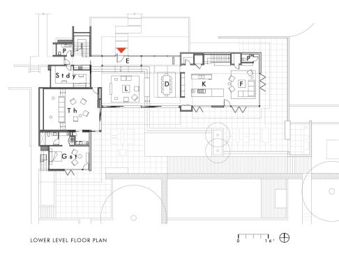
The judges admired the choreography of spaces in this Northern California house, starting with the entry and moving through the interiors. “Just the progression of how you walk through the space would be very interesting and pleasant,” said one juror. They also appreciated the layering of materials: mahogany, stone, glass, and stucco. “It’s a really nice blending of different elements,” a judge added. “There’s nothing gratuitous here.”

According to architect Robert Swatt, the clients requested a home that made them feel as if they were on vacation. “They wanted something comfortable, casual, barefoot,” he says. So he centered the floor plan on a mahogany-lined, double-height great room that’s visually open and easily accessible from both the outdoors and from other interior areas. Ceiling height changes, floor treatments, and small level shifts delineate different parts of the space, creating a multifunctional zone that still forms a cohesive whole.

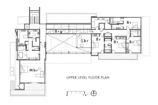
A glass bridge above the great room connects it with the home’s two upstairs sleeping wings. “There’s a contrast between the lightness of the bridge and the sturdiness of this mahogany box,” Swatt explains.


Entrant/Architect: Swatt|Miers Architects, Emeryville, Calif.; Builder: Lencioni Construction Co., Redwood City, Calif.; Landscape architect: Ron Herman Landscape Architect, San Leandro, Calif.; Interior designer: Connie Wong, Swatt|Miers Architects; Living space: 8,500 square feet; Site: 2.8 acres; Construction cost: Withheld; Photographer: Tim Griffith.


Resources: Bathroom fittings: Dornbracht, www.dornbracht.com, Hansgrohe, www.hansgrohe-usa.com; Bathroom fixures: Boffi, www.boffi.com, Lacava, www.lacava.com, Concreteworks, www.concreteworks.com; Hydro Systems, www.hydrosystems.com; Cooktop: Elica, www.elica.com; Countertops: Corian, www2.dupont.com, Caesarstone, www.caesarstoneus.com, IceStone, www.icestoneusa.com; Dishwasher: Bosch, www.bosch.us; Exterior siding: Dryvit, www.dryvit.com; Flooring (tile): Ann Sacks, www.annsacks.com, Trend USA, www.trend-vi.com, Porcelanosa, www.porcelanosa-usa.com, Lea Ceramiche, www.ceramichelea.it; Garbage disposal: InSinkErator, www.insinkerator.com; Hardware: AHI, www.ahi-arch.com; Insulation: Johns Manville, www.jm.com; Kitchen cabinets: Arclinea, www.arclinea.it; Kitchen fittings: Dornbracht, www.dornbracht.com; Kitchen fixtures: Julien, www.julien.ca; Lighting fixtures: Lutron, www.lutron.com; Oven/range/refrigerator: Thermador, www.thermador.com; Paints/stains/wall finishes: Sikkens, www.sikkens.com, Benjamin Moore, www.benjaminmoore.com; Range hood: Zephyr, www.zephyr.com; Skylights: O’Keeffe’s, www.okeeffes.com; Windows: Brothers, www.brothershomeimp.com

About the Author

Upcoming Events

  • Build-to-Rent Conference

    JW Marriott Phoenix Desert Ridge

    Register Now
  • Builder 100

    Dana Point, CA

    Register Now
  • Protecto Wall VP Standard Installation Video

    Webinar

    Register for Free
All Events