Builder's Choice

Parkside Residences, Austin, Texas

Project of the Year

2 MIN READ

Architecture and construction are fields in which creative problem-solving can pay off big on issues such as affordability and suburban sprawl. Our judges elevated the Parkside Residences to Project of the Year, not just because the three spec homes are beautifully designed and efficiently built, but because they also make ingenious use of what once was a single lot on an overlooked commercial strip. The design team (Kevin Alter, Ernesto Cragnolino, and Tim Whitehill) overcame several construction challenges to get the job done, including an unstable 60-foot slope. Their client was the woman next door, who asked them to help her buy, subdivide, and build on the lot. “It didn’t make sense for a typical developer because of the huge cost of foundations and working out access for driveways,” Alter says. “Mostly it was about trying to do something she could feel good about—and that wouldn’t spoil her view of downtown Austin.”

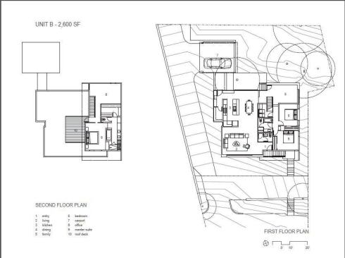
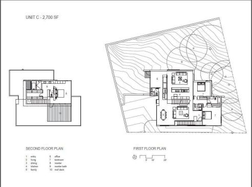
The acre plot sits between a single-family neighborhood and commercial properties along a boulevard farther down the hill, and the new flag-lot subdivision is accessed from the commercial street. For economy, the buildings were mostly stick-framed and share a similar material palette. Each stucco-and-cypress-clad home has a green roof that blends into the thick underbrush when viewed from higher on the hillside.

It’s one thing to design a modernist pavilion in the woods, but quite another to do it in a dense urban setting. Alterstudio deftly balanced openness and privacy by fitting each living area and master bedroom with a wall of glass that connects to discrete outdoor space, and with roof planes that carry out past the glass. Select gestures such as richly grained walnut cabinetry and exterior wood screens enliven an otherwise modest composition. “It’s like wearing a beautiful tie with a straightforward suit, and is a counter-argument to the prevailing trend in modern work,” Alter says. “Rather than fetishizing the building, we like to use things with an inherently complex character.”

The judges praised the more-with-less approach, the striking indoor-outdoor relationships, and the connection to the city. “It puts outdoor spaces on a podium and celebrates them,” a judge said. Others applauded the project’s “affordably constructed resort ambience” and the “compact design in a transitional neighborhood.”

Hear more from the jury about the merits of this project:

Project Credits

Entrant/ArchitectAlterstudio Architects, Austin, Texas; BuilderRisher Martin, Austin; Living Space 2,300 to 2,700 square feet; Site 0.33 acre; Sales Price $560,000 to $588,000; Construction Cost $215 to $250 per square foot; Photographer Casey Dunn

On Site

About the Author

Cheryl Weber

Cheryl Weber, LEED AP, is a senior contributing editor to Custom Home and a frequent contributor to Builder. 

Upcoming Events

  • Protecto Wall VP Standard Installation Video

    Webinar

    Register for Free
  • How Right-Sized Plumbing Saves Money, Saves Water, and Protects Wellness

    Webinar

    Register for Free
  • Building Careers from the Ground Up: The IUPAT Floor Covering Apprenticeship and Training Program

    Webinar

    Register for Free
All Events