Pilates Studio and Carport, Dallas

renovation / merit

1 MIN READ

susan appleton architecture, dallas

Given a tight budget, Susan Appleton, AIA, LEED AP, produced an unfussy, yet elegant design for this pilates studio and carport. Our judges gave her a Merit award for her efforts.

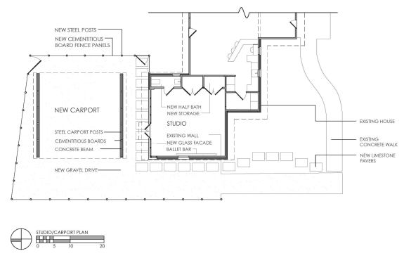
The client wanted a functional space with enough room to accommodate exercise equipment. Appleton kept most of the existing garage to control costs, but she removed the north wall and replaced the roof with a shed top. General contractor Mitch Hammond, who also is a steel fabricator and jack-of-all-trades, made a steel framing system for the north wall and inserted insulated glass to bring in light.

Hammond also built a steel framing system for the adjacent carport. “We had fallen in love with a certain 5-foot-by-10-foot cement board, so we wanted to use it,” Appleton says. The framing apertures measure 5 feet wide to hold the privacy-creating panels, which works nicely with the steel. The carport is topped with corrugated metal and a hog wire trellis that will accommodate greenery in the future.

“It’s very modest, yet it has a great degree of presence,” said one judge.


Project Credits
principal in charge / project architect / interior designer: Susan Appleton, AIA, LEED AP, Susan Appleton Architecture, www.susanappleton.com
general contractor: Mitch Hammond, Hammond Remodeling, Sunnyvale, Texas
project size: 440 square feet
site size: Approximately 0.25 acre
construction cost: $50 per square foot
photography: Craig D. Blackmon, FAIA

View the next 2010 rada winner.

About the Author

Upcoming Events

  • Protecto Wall VP Standard Installation Video

    Webinar

    Register for Free
  • How Right-Sized Plumbing Saves Money, Saves Water, and Protects Wellness

    Webinar

    Register for Free
  • Building Careers from the Ground Up: The IUPAT Floor Covering Apprenticeship and Training Program

    Webinar

    Register for Free
All Events