Pinedale, Wyo., Residence

Custom Home 3,000 to 5,000 Square Feet / Merit Award

2 MIN READ

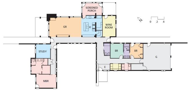
This contemporary version of an old-fashioned log cabin impressed the judges. “It sits on the land really well,” said one. “The detail is truly amazing, and the house has a very comfortable scale.” Carney Architects allocated the Pinedale, Wyo., project’s program into three connected, one-story pavilions. “We get spaces that aren’t too wide, so they get good light from multiple directions,” says Carney’s Eric Logan. One pavilion holds the master bedroom and study, another the main public rooms, and a third contains guest bedrooms, a garage, a laundry room, and mechanicals. The three parts are arranged around a south-facing courtyard, forming a protected outdoor space for the owners to enjoy.

Two perpendicular walls of hewn logs comprise the home’s organizing spines, nodding to the region’s log-house vernacular. Large expanses of glass, a decided departure from tradition, allow views of the surrounding meadow, river bend, and mountains to penetrate the interiors. Cedar cladding, metal roofs and detailing, and a dry-stacked stone chimney emphasize the region’s rugged natural beauty. Inside the house, scored concrete floors, exposed ceiling timbers, and black granite counters employ similar elements to achieve a polished effect. “The idea was to bring the exterior materials inside and use them in a much more refined way,” says Logan.

Project Credits
Entrant/Architect:
Carney Architects, Jackson, Wyo.
Builder: Chambers Design-Build, Pinedale, Wyo.
Interior designer: Hancock & Hancock, Chicago
Landscape architect: Hershberger Design, Jackson
Living space: 4,200 square feet
Site: 23.5 acres
Construction cost: Withheld
Photographer: Paul Warchol

Resources: Bathroom plumbing fittings: Kohler and Sonoma Forge; Bathroom plumbing fixtures: American Standard, Kohler, Soup Can, and Zuma; Dishwasher: Fisher Paykel; Garbage disposer: In-Sink-Erator; Interior doors: Woodharbor; Kitchen cabinets: Pine Creek Woodworks; Kitchen plumbing fittings: Decohaus and Price Pfister; Kitchen plumbing fixtures: Elkay and Franke; Lighting fixtures: Artemide, Bega, and B-K Lighting; Oven: Wolf; Paints: Sherwin-Williams; Refrigerator: GE; Windows: Peak Glass and Pozzi.

About the Author

Upcoming Events

  • Protecto Wall VP Standard Installation Video

    Webinar

    Register for Free
  • How Right-Sized Plumbing Saves Money, Saves Water, and Protects Wellness

    Webinar

    Register for Free
  • Building Careers from the Ground Up: The IUPAT Floor Covering Apprenticeship and Training Program

    Webinar

    Register for Free
All Events