Potomac, Md., Residence

Custom Home 3,000 to 5,000 Square Feet / Merit Award

2 MIN READ

Suburban planned developments seldom offer prime custom home sites. This one, built around a working horse farm outside Washington, D.C., is a notable exception. “It’s the best planned community I’ve been a part of, or even seen,” says architect Robert Gurney, whose clients made his job even easier by nailing down one of the neighborhood’s best locations. “They got a great lot,” Gurney says, “with a horse field on one side and the woods on the other.” The architect responded with a house that takes full advantage of those view opportunities to provide a very refined and surprisingly rural experience.

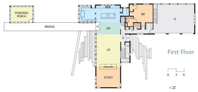
The building consists of three cedar-shingled, shed-roofed pavilions joined by two contrasting flat-roofed bridges. North and west walls, facing pasture and woods, are virtually all glass. High glass facing the neighboring houses admits light while preserving the illusion of solitude. While the owners can feel they are all alone here, their architect kept the neighbors—and the architectural review board—very much in mind. “There are a lot of Shingle-style houses in this development,” Gurney says. “The shingle siding really came from that.”

The house’s interior openness and simplicity reflect a very different influence. “One of the clients is from Japan,” Gurney says. “All of that is from his culture.” The Asian connection is most evident at the main entry, an understated corner cut-out, barely above grade, that brings together cedar shingles, glass, board-formed concrete, and bluestone in a quietly abstract composition. A shoji-like Kalwall panel that lights the adjacent garage underscores the Japanese theme. As one judge noted, “It all comes together at that entry.”

Project Credits
Entrant/Architect:
Robert M. Gurney, FAIA, Architect, Alexandria, Va.
Builder: O.C. Builders, McLean, Va.
Living space: 4,361 square feet
Site: .75 acre
Construction cost: Withheld
Photographer: Hoachlander Davis Photography

Resources: Bathroom/kitchen plumbing fittings: Vola; Bathroom plumbing fixtures: Kohler; Cabinets: Burger’s Custom Cabinetry; Dishwasher: Miele; Fireplace: Heatilator; Garbage disposer: Franke; Insulation: Carrier; Kitchen plumbing fixtures: Franke; Lighting fixtures: Bega and Lightolier; Oven: Thermador; Paints: Duron.

About the Author

Bruce D. Snider

Bruce Snider is a former senior contributing editor of  Residential Architect, a frequent contributor to Remodeling. 

Upcoming Events

  • Protecto Wall VP Standard Installation Video

    Webinar

    Register for Free
  • How Right-Sized Plumbing Saves Money, Saves Water, and Protects Wellness

    Webinar

    Register for Free
  • Building Careers from the Ground Up: The IUPAT Floor Covering Apprenticeship and Training Program

    Webinar

    Register for Free
All Events