Private Residence, Atherton, Calif.

Grand Award / 3,000 to 5,000 Square Feet

1 MIN READ

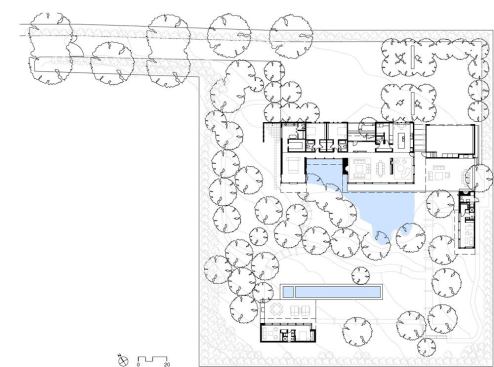
The most striking feature of the 1960s teardown that once occupied this Atherton, Calif., site was its manmade pond. When the longtime owners decided to build a new residence on the same spot, they asked architects Mary Griffin and Eric Haesloop to keep the pond and recreate the original home’s sense of retreat and seclusion. “They wanted to feel like they were in a private world,” Haesloop says.

The unusual lot sits behind another property instead of facing the street, so it’s completely surrounded by neighbors. Griffin and Haesloop’s challenge was to rejuvenate the site while maintaining that prized sense of privacy. They opted to divide the house into four structures and spread them out around the pond, thus encouraging the clients to move around in the landscape. Walls of custom glass doors and windows strengthen the relationship between the interiors, the newly enlarged pond, and the surrounding natural environment.

A combination of overhangs and cross-ventilation helps the owners stay cool without air conditioning, despite the area’s often hot climate. Photovoltaic and solar hot water panels, spray foam and denim insulation, and radiant heat all work to reduce the home’s carbon footprint while making its occupants comfortable. “This house just has so much going for it,” said a judge.

Project Credits
Entrant/Architect/Interior designer:
Turnbull Griffin Haesloop Architects, San Francisco
Builder:Seddon Construction Co., San Francisco
Landscape architect:Lutsko Associates, San Francisco
Structural engineer: Fratessa Forbes Wong, Oakland, Calif.
Living space: 4,099 square feet
Site: 1.2 acres
Construction cost: Withheld
Photographer: David Wakely Photography

About the Author

Upcoming Events

  • Build-to-Rent Conference

    JW Marriott Phoenix Desert Ridge

    Register Now
  • Builder 100

    Dana Point, CA

    Register Now
  • Protecto Wall VP Standard Installation Video

    Webinar

    Register for Free
All Events