private residence, carmel valley, calif.

custom / more than 3,500 square feet / merit

1 MIN READ

turnbull griffin haesloop, san francisco

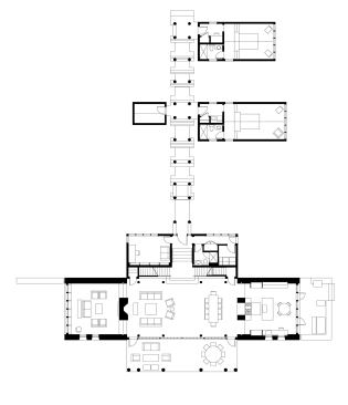
The clients’ memories of their Catskills cabin inspired the design of this summer compound. Eric Haesloop, AIA, and Mary Griffin, FAIA, took their idea several steps further, reinventing the log cabin vernacular with a main house and guest cabins that evoke a summer camp. “You wouldn’t just put up a cabin in the middle of Carmel Valley,” Haesloop says. “But we wanted to capture the qualities of those camps—their walkways, porches, and indoor-outdoor connections.”

The main structure—made of sprayed earth from the site, recycled cedar siding, and certified lumber—is linked to the hillside cabins with an exterior arcade. “As you move up the steps, the walkway frames the oaks and connects your experience of being there to the larger landscape,” Griffin explains.

“This is well-done regionalism, beautifully rooted in the site,” a judge said. “The way it steps down the hill is amazing. Really, really moving.”

principals in charge: Eric Haesloop, AIA, and Mary Griffin, FAIA, Turnbull Griffin Haesloop
project architect: Stefan Hastrup, AIA, Turnbull Griffin Haesloop
general contractor: Brian Groza, Groza Construction, Monterey, Calif.
project size: 4,399 square feet
site size: 3.52 acres
construction cost: Withheld
photography: Matthew Millman

product specs
bathroom plumbing fittings:Dornbracht Americas; bathroom plumbing fixtures:Concreteworks Studio, Duravit USA, Hoesch, TOTO USA; ceiling fans:Boffi USA; countertops:Concreteworks Studio; entry doors, windows:Northwest Door; hvac equipment:Fantech; insulation:Bonded Logic (UltraTouch); lighting fixtures:Louis Poulsen Lighting; range:Viking Range Corp.; refrigerator:Sub-Zero; roofing:Umicore Building Products USA; skylights/roof windows:O’Keeffe’s

About the Author

Cheryl Weber

Cheryl Weber, LEED AP, is a senior contributing editor to Custom Home and a frequent contributor to Builder. 

Upcoming Events

  • Protecto Wall VP Standard Installation Video

    Webinar

    Register for Free
  • How Right-Sized Plumbing Saves Money, Saves Water, and Protects Wellness

    Webinar

    Register for Free
  • Building Careers from the Ground Up: The IUPAT Floor Covering Apprenticeship and Training Program

    Webinar

    Register for Free
All Events