Private Residence, Greenwich, Conn.

Grand Award / More Than 5,000 Square Feet

1 MIN READ

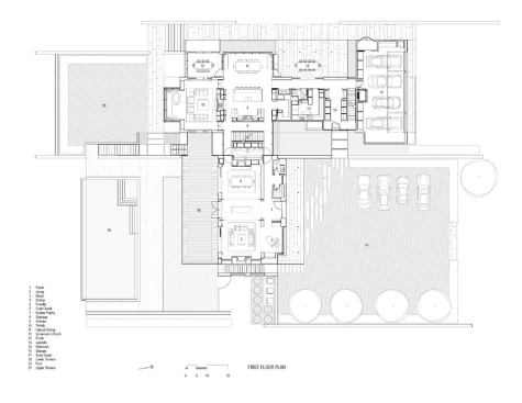
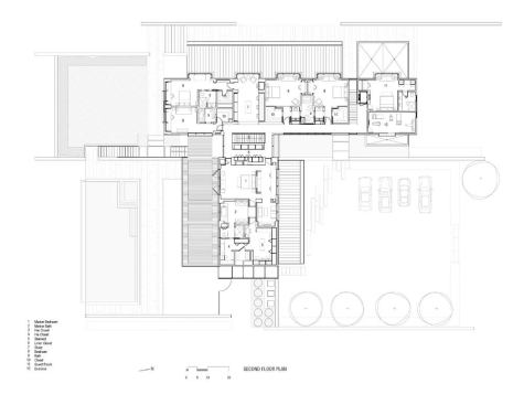
The crisp detailing, smart space planning, and integration of building and landscape of this Greenwich, Conn., house impressed the judges. “It’s very hard to do a house this large well,” said one. “There’s an amazing level of control here.”

Architect Joeb Moore used a series of cascading concrete retaining walls to organize the steeply sloped site. These walls—along with the topography and landscaping—conceal most of the home’s white stucco-clad first level; all you see from the street is its cedar-clad upper portion. “Immediately, you cut the perceived mass in half,” Moore explains. He divided the floor plan into two long, gabled pieces that come together in a “T” shape. The bottom end of the “T” faces the street, its striking wood detailing drawing the eye away from the rest of the house tucked behind it.

Moore wanted to create particular instances where the outdoors and indoors converged, so he designed three voids that slice through different parts of the building. “That moment when there’s a gap or a break, you’re both inside and outside,” he says.

Entrant/Architect: Joeb Moore + Partners, Architects, Greenwich, Conn.
Builder
: Prutting & Co. Custom Builders, New Canaan, Conn.
Landscape architect:Reed Dillon & Associates, Lawrence, Kan..
Interior designer
: Sally Markham, Greenwich
Structural engineer: Edward Stanley Engineers, Guilford, Conn.
Living space: 12,500 square feet
Site: 3.8 acres
Construction cost: Withheld
Photographer: David Sundberg/Esto. www.esto.com

About the Author

Upcoming Events

  • Happier Homebuyers, Higher Profits: Specifying Fireplaces for Today’s Homes

    Webinar

    Register for Free
  • Sales is a Sport: These Tactics Are the Winning Play

    Webinar

    Register for Free
  • Dispelling Myths and Maximizing Value: Unlock the Potential of Open Web Floor Trusses

    Webinar

    Register for Free
All Events