Residence e2, Washington, D.C.

Merit Award / Renovation

1 MIN READ

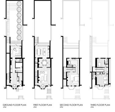
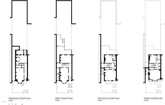
The judges deemed this row house remake in Washington, D.C.’s Georgetown neighborhood “a successful renovation.” As one juror explained, “It has the traditional façade and this very modern interior, and doesn’t compromise either one.”

Achieving that sense of unity between old and new was no simple task. Architect Robert M. Gurney gutted the deteriorating 1876 house to prepare it for its next century. “At the end of the day, I wanted the building to be plumb and level and square,” he says. He and his staff reconfigured the interiors into bigger, more open spaces, which accommodate the clients’ young family as well as their growing art collection. A steel-and-glass addition onto the back of the house establishes a strong connection to the yard.

Gurney also had the building’s period wood and plaster moldings matched and replaced within the original footprint. “The project really became about maintaining the historic Georgetown character in the existing house and then weaving the modern elements in,” he says.

Entrant/Architect/Landscape designer:Robert M. Gurney, FAIA, Washington, D.C.
Builder:Prill Construction Group, Bethesda, Md.
Interior designer:Baron Gurney Interiors, Washington, D.C.
Living space: 3,600 square feet
Site: 0.8 acre
Construction cost: Withheld
Photographer: Maxwell MacKenzie

About the Author

Upcoming Events

  • Happier Homebuyers, Higher Profits: Specifying Fireplaces for Today’s Homes

    Webinar

    Register for Free
  • Sales is a Sport: These Tactics Are the Winning Play

    Webinar

    Register for Free
  • Dispelling Myths and Maximizing Value: Unlock the Potential of Open Web Floor Trusses

    Webinar

    Register for Free
All Events