Richmond, Va., Residence

Custom Home 3,000 to 5,000 Square Feet / Merit Award

2 MIN READ

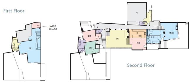
A river is less a place than it is a sequence of events. And this house, on the banks of the James, just west of downtown Richmond, Va., takes its cues from the river. Laid out in linear fashion paralleling the shore, it flows with the contours of its sloping site, combining masses in a way that seems both orderly and entirely natural. The spine of the building is a circulation corridor that begins at the entry hall and runs nearly the length of the building, narrowing as it moves from public to private areas. A row of glass display cases, punctuated by four mast-like fir columns, divides the corridor from the living room. Four risers below the entry elevation and topped with shallow-pitched open rafters, the living room opens to the river view with a 14-foot-high window wall. Passing the kitchen and dining areas, the corridor narrows further to its terminus at the master suite, also four risers down, which can be closed off with a pocket door. An open-tread stair, internal to the master suite, leads to a private office loft and roof garden. Two guest rooms, with a shared bath, occupy the opposite end of the house.

Outside, architect Chris Fultz exploited the building’s many levels and plan offsets to create a sheltered entry court, as well as gardens, patios, and rooftop living spaces oriented toward the river below. Our judges admired the “great eave lines and great inside/outside connections” and the way in which the main corridor “flexes and creates a forced perspective.” Said one, “This is a very livable Modern house. You could get comfortable here.”

Project Credits
Entrant/Architect: SMBW Architects, Richmond, Va.
Builder: McGuire, Hearn, Toms, Manakin-Sabot, Va.
Living space: 3,500 square feet
Site: 2.5 acres
Construction cost: $230 a square foot
Photographer: James West

Resources: Bathroom plumbing fittings: Dornbracht; Bathroom plumbing fixtures: Kohler and Toto; Bathroom/kitchen cabinets, garage doors, interior paneling, interior doors, trim work: Vangarge Woodworks 494; Ceramic tile flooring: American Olean and Dal Tile; Dishwasher: Bosch 405; Entry doors: Duratherm; Hardware: Schlage; Insulation: Owens Corning; Kitchen plumbing fixtures: Hansgrohe; Lighting fixtures: Bega, Lightolier, Lucifer, and Translite; Oven: Dacor; Paint: Sikkens; Patio doors: Duratherm; Range: Dacor; Refrigerator: Sub-Zero; Skylights: Velux; Structural lumber: Trus Joist; Windows: Duratherm.

About the Author

Bruce D. Snider

Bruce Snider is a former senior contributing editor of  Residential Architect, a frequent contributor to Remodeling. 

Upcoming Events

  • Happier Homebuyers, Higher Profits: Specifying Fireplaces for Today’s Homes

    Webinar

    Register for Free
  • Sales is a Sport: These Tactics Are the Winning Play

    Webinar

    Register for Free
  • Dispelling Myths and Maximizing Value: Unlock the Potential of Open Web Floor Trusses

    Webinar

    Register for Free
All Events