This remodel organizes the house around a pathway that angles th…
This remodel organizes the house around a pathway that angles through the 50-foot-wide lot
Tim Street-Porter
This remodel organizes the house around a pathway that angles th…
This remodel organizes the house around a pathway that angles through the 50-foot-wide lot
Tim Street-Porter
From the front gate, the entry path descends to a sunken patio.
Tim Street-Porter
As it passes through the house, the pathway is defined by a line…
As it passes through the house, the pathway is defined by a linear skylight punctuated by aluminum-clad beams.
Tim Street-Porter
The pathway subtly divides the loftlike interior into kitchen, l…
The pathway subtly divides the loftlike interior into kitchen, living, and dining spaces.
Tim Street-Porter
The alley-facing garage is a full story below the living spaces….
The alley-facing garage is a full story below the living spaces. Its roof doubles as a deck off the dining area.
Tim Street-Porter
The master bath.
Courtesy Griffin-Enright Architects
The house before renovation.
Griffin Enright Architects
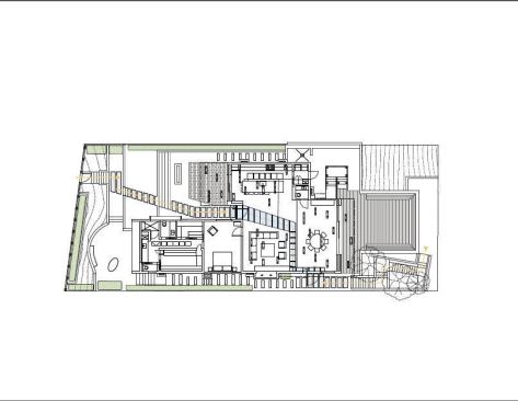
The floor plans
Griffin Enright Architects
Building section
This thoroughgoing remodel transforms a house that merely coped with its challenging site to one that weaves landscape and architecture into a cohesive living environment. Architects Margaret Griffin and John Enright organized the project around a pathway that angles through the 50-foot-wide lot, defining it outdoors by paving stones and indoors by a skylight that mirrors the pavers’ rhythm with a progression of aluminum-clad roof beams.
From the front gate, the path descends to a sunken patio at the entrance. It then passes through the building, subtly dividing the loftlike interior into kitchen, living, and dining spaces. Emerging at the rear of the house, it descends a full flight of stairs beside an alley-facing garage, whose roof doubles as an elevated deck off the dining area.
The jury commended the architects for “taking an existing house that denied its site and creating … a garden that matches the architecture.” The building’s interior, whose neutral palette backdrops the owners’ art collection, also drew praise. “It’s nice how they brought ambient lighting in throughout,” one judge said.