St. Mary’s County, Md., Residence

Custom Renovation / Merit Award

2 MIN READ

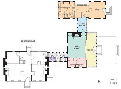
Adapting a historic home to contemporary standards is always a delicate balancing act. It is all too easy to overwhelm an older building with additions sized to our current, more expansive age. This addition to a prominent 18th-century Maryland manor house gracefully avoids that pitfall, greatly improving the house’s livability without diminishing its soul. New rooms—a kitchen/great room and master bedroom suite—are linked to the old house only by a narrow entry hall. They proceed in a sequence of volumes, each subordinate to the original building, on an L-shaped footprint that creates a number of useful outdoor spaces. The addition adheres strictly to the materials, scale, and style of the gabled original, down to the chimney details and dormer proportions. But architect Stephen Muse had the confidence to dip further into the period vernacular, introducing hip roofs at the bedroom wing and an octagonal pool house.

The interior strays from strict period style, especially in the great room, with its cathedral ceiling, painted-wood roof trusses, and the six-leaf pocket sliding glass door that opens onto the screened porch. But molding details and the brick floor that unifies the great room and screened porch suggest an update of an older building rather than ground-up new construction. Our judges commended the architect and builder on a “nice job of maintaining the character of the original. They managed to make it bigger without destroying the scale.”

Project Credits
Entrant/Architect:
Muse Architects, Washington, D.C.
Builder: Horizon Builders, Crofton, Md.
Living space: 3,617 square feet
Site: 412 acres
Construction cost: Witheld
Photographer: © Robert Lautman

Resources: Bathroom plumbing fittings: Jado; Bathroom plumbing fixtures: Kohler; Dishwasher: Bosch; Doors/windows: Marvin; Garbage disposer/trash compactor: Kitchen Aid; Hardware: Baldwin; Insulation: Icynene; Kitchen cabinets: Premiere; Kitchen plumbing fittings: Hamat; Kitchen plumbing fixtures: Elkay; Oven: Dacor; Paint: Benjamin Moore; Patio doors; G-U Lift Sliding Doors; Refrigerator: Sub-Zero; Security system: DMP Devices; Trimwork: Smoot.

About the Author

Bruce D. Snider

Bruce Snider is a former senior contributing editor of  Residential Architect, a frequent contributor to Remodeling. 

Upcoming Events

  • Protecto Wall VP Standard Installation Video

    Webinar

    Register for Free
  • How Right-Sized Plumbing Saves Money, Saves Water, and Protects Wellness

    Webinar

    Register for Free
  • Building Careers from the Ground Up: The IUPAT Floor Covering Apprenticeship and Training Program

    Webinar

    Register for Free
All Events