Step Up on Fifth, Santa Monica, Calif.

affordable / merit

2 MIN READ

pugh + scarpa architects, santa monica

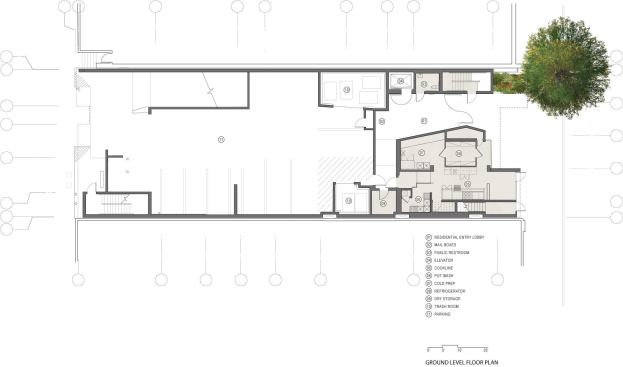
This affordable housing for homeless and mentally disabled residents impressed the jury with its artful blend of private and semi-public zones. “It’s an incredibly dense site, and yet you have all these nice outdoor spaces,” observed one judge. “It fits into the urban condition.”

The 46-unit project by Pugh + Scarpa Architects contains space for supportive services, as well as a first-floor gallery featuring artwork by residents. All circulation is exterior, and a series of passive solar strategies—cross-ventilation and metal shading devices, for example—greatly reduces the building’s carbon footprint while enhancing inhabitants’ quality of life. Community rooms and a pair of second-floor courtyards provide safe, sheltered places to socialize. “The community kitchens are a way to get people out of their units,” says Angela Brooks, AIA, LEED AP, of Pugh + Scarpa. To satisfy city requirements, the building also incorporates an underground 23-car parking lot complete with a hydraulic lift system.


Project Credits
principal in charge: Angela Brooks, AIA, LEED AP, Pugh + Scarpa Architects, www.pugh-scarpa.com
lead designer: Lawrence Scarpa, FAIA, Pugh + Scarpa Architects
developer: Tod Lipka, Step Up on Second, Santa Monica, Calif.
general contractor: Frank Ruiz, P.E., Ruiz Brothers Construction Co., City of Commerce, Calif., www.ruizbrothers.com
interior designer: Pugh + Scarpa Architects
project size: 220 square feet to 275 square feet per unit
site size: 0.2 acre; construction cost: $361 per square foot
rental price: approximately 30 percent of tenant’s monthly income
units in project: 46
photography: John Edward Linden

Product Details
bathroom fittings, kitchen fixtures: American Standard www.americanstandard-us.com; bathroom fixtures: Elkay USA www.elkay.com; cooktop, refrigerator: GE Consumer & Industrial www.ge.com]; doors: Timely Industries www.timelyframes.com, T.M. Cobb Co. www.tmcobb.com; exterior siding: McNichols Co. www.mcnichols.com, ParexLahabra www.elrey.com; flooring (carpet): Mohawk Industries www.mohawkflooring.com; flooring (ceramic tile/stone/concrete): Dal-Tile Corp. www.daltile.com; flooring (linoleum): Forbo Flooring North America www.themarmoleumstore.com; garage doors: Overhead Door Corp. www.overheaddoor.com; garbage disposer: In-Sink-Erator www.insinkerator.com; hardware: Schlage Lock Co. www.schlage.com; hvac equipment: Carrier Corp. www.carrier.com; hydronic heating: Runtal North America www.runtalnorthamerica.com; insulation: Owens Corning www.owenscorning.com; kitchen fittings: Kohler Co. www.kohler.com; lighting fixtures: BEGA/US www.bega-us.com, Cooper Lighting (Halo) www.haloltg.com, Cooper Lighting (Shaper) www.shaperlighting.com, Prudential Ltg. www.prulite.com; paints/stains/wall finishes: Dunn-Edwards Corp. www.dunnedwards.com, Frazee Paint www.frazee.com; roofing: Johns Manville www.jm.com; skylights/roof windows: Bristolite Skylights www.bristolite.com; structural systems: USG Corp. www.usg.com, Weyerhaeuser Co. www.weyerhaeuser.com; windows: Fleetwood Windows & Doors www.fleetwoodusa.com, Milgard Windows & Doors www.Milgard.com

View the next 2010 rada winner.

About the Author

Upcoming Events

  • Protecto Wall VP Standard Installation Video

    Webinar

    Register for Free
  • How Right-Sized Plumbing Saves Money, Saves Water, and Protects Wellness

    Webinar

    Register for Free
  • Building Careers from the Ground Up: The IUPAT Floor Covering Apprenticeship and Training Program

    Webinar

    Register for Free
All Events