Sweetwater Farm Winery, Glen Mills, Pa.

Accessory Building

1 MIN READ

This adaptive reuse of an 18th-century barn captivated the judges’ collective imagination. “They found a use for a building that was basically derelict,” said one juror admiringly. “It’s a noble reuse on a historic property.”

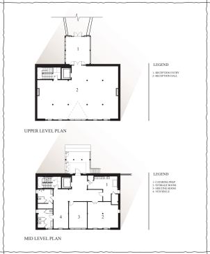
Architects Peter H. Zimmerman and Chris Hoffman had to gut most of the interiors because of structural instabilities. They rebuilt a post-and-beam frame within the original stone walls. And they replaced failing portions of those walls, indicating the new sections with red-painted, board-and-batten siding on the exterior. The newer elements beautifully complement the existing stone, as do the salvaged doors, flooring, and hardware that have been restored or repurposed on the interiors. Somehow the building’s fresh identity as a winemaking and wine storage space, as well as a reception and meeting venue, seems a natural outgrowth of its original function as a barn and granary.

The architects also opted to replace the roof, adding a cupola that brings light into the heart of the


Entrant/Architect: Peter Zimmerman Architects, Berwyn, Pa.; Builder: E.B. Mahoney Builders, Bryn Mawr, Pa.; Living space: 8,100 square feet; Site: 300-plus acres; Construction cost: Withheld; Photographer: Tom Crane.


Product details

Bathroom fittings: Kohler, www.kohler.com; Elevator: Schindler USA & Canada, www.us.schindler.com; Hardware: LCN, www.lcnclosers.com, Ives, www.ives.ingersollrand.com, Von Duprin, www.vonduprin.com; HVAC equipment: Buderus, www.buderus.us, Trane, www.trane.com; Insulation: Murus, www.murus.com, Owens Corning, www.owenscorning.com; Lighting fixtures: Rambusch, www.rambusch.com; Roofing: Galvalume, www.galvalume.com; Windows: Weather Shield Windows & Doors, www.weathershield.com

Learn more about markets featured in this article: Philadelphia, PA.

About the Author

Upcoming Events

  • Zonda’s Building Products Forecast Webinar

    Webinar

    Register Now
  • Future Place

    Irving, TX

    Register Now
  • Q3 Master Plan Community Update

    Webinar

    Register Now
All Events