Telegraph Hill, San Francisco

Grand / Renovation

2 MIN READ

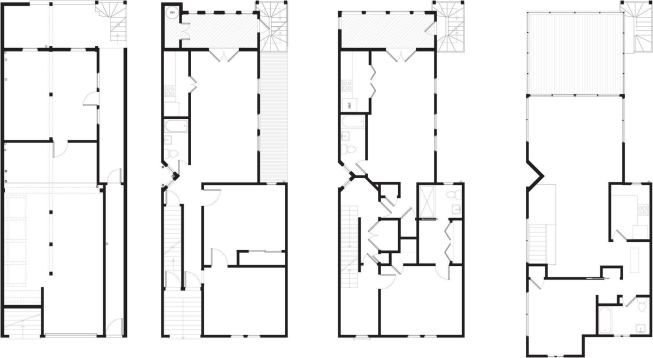
When architect Jonathan Feldman first saw this narrow city home, it had a plain stucco façade and disjointed interiors. The was entry separated from the upper living spaces by two flights of dim stairs. “It felt like you were going through bedroom floor after bedroom floor to get up top,” Feldman says. “We focused on how to bring light and an architectural element down to greet people at the front door,” and lure them upward.

His firm solved the problem in dramatic fashion, opening up the top floor as one light-flooded room containing the kitchen, dining room, and living room. Floor-to-ceiling windows on three sides capture views to the Golden Gate Bridge, Coit Tower, and Transamerica Pyramid. Feldman made surgical cuts, too: Four skylights inserted above the stairwell pour light onto a glass floor in the kitchen, while translucent hallway flooring below pulls the light even farther down the stairs.

Another inventive move is a perforated metal screen that wraps the kitchen ceiling. It moves down through the stairwell, adding texture from top to bottom. “The screen over the kitchen allows that room to feel like a distinct zone” within the larger space, he says. “And it pulls visitors up through the house to the main floor.” Those broad strokes are paired with clean detailing that complements the open plan. Pullout kitchen cupboards provide accessible storage, and extra-deep counters have pockets that hide kitchen equipment. The interior’s gray-and-white color scheme spills out to the façade’s new limestone panels and deep metal frames around the windows and garage.

Everything defers to the extravagant view. Feldman pulled the third floor back to create an outdoor room with a fireplace, a steel-and-glass windscreen, and an operable awning. Our jury applauded. “The views from the deck are insane,” a judge said.

On Site The perforated metal screen solved multiple problems. In addition to tying together the vertical spaces, defining the kitchen, and filtering the skylights, it covers some awkwardly placed top-floor windows, which were left in place for their light and downtown views.

About the Author

Cheryl Weber

Cheryl Weber, LEED AP, is a senior contributing editor to Custom Home and a frequent contributor to Builder. 

Upcoming Events

  • Happier Homebuyers, Higher Profits: Specifying Fireplaces for Today’s Homes

    Webinar

    Register for Free
  • Sales is a Sport: These Tactics Are the Winning Play

    Webinar

    Register for Free
  • Dispelling Myths and Maximizing Value: Unlock the Potential of Open Web Floor Trusses

    Webinar

    Register for Free
All Events