The Crib on Nanjemoy Creek, Nanjemoy, Md.

On the Boards

2 MIN READ

A few years ago, architect Jeffery Broadhurst built a one-room weekend getaway for himself and his family. The project was widely published, and it attracted the attention of a Washington, D.C., client who wanted something similar for his property on the Chesapeake Bay. Harsh storms often sweep the area, so the new house would have to be as sturdy as possible.

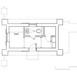
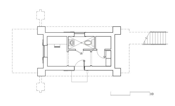
Accordingly, Broadhurst designed a steel-framed structure with panelized walls, flooring, and roofing. Its pieces are meant to be built in the shop and then assembled on the site. The 400-square-foot project resembles traditional corn cribs, with slanted sides and a pitched roof, and is raised 8 feet above grade to prevent flooding. “I love it,” said one judge. “I want to build it.”

The interiors feature a flexible kitchen that closes into a cabinet when not in use. Above the kitchen lies a windowed loft bedroom that’s accessed by a fold-up ladder. “We were trying to be as efficient with space as we can be,” Broadhurst says.


Entrant/Architect: Broadhurst Architects, Rockville, Md.; Builder: Added Dimensions, Takoma Park, Md.; Living space: 400 square feet; Site: 27 acres; Construction cost: $275 per square foot; Renderings: Broadhurst Architects.


Product details

Bathroom cabinets: Bobrick, www.bobrick.com; Bathroom and kitchen fittings: Kohler, www.kohler.com; Bathroom fixtures: Toto USA, www.totousa.com; Doors, windows: Kawneer North America, www.kawneer.com; Flooring: Porcelanosa, www.porcelanosa-usa.com; Garage doors: Overhead Door, www.overheaddoor.com; Hardware: Stanley, www.stanleyhardware.com, Austin Hardware & Supply, www.austinhardware.com; HVAC equipment: Dickinson Newport, www.dickinsonmarine.com, Danfoss North America, www.danfoss.com; Kitchen fixtures: Elkay USA, www.elkayusa.com; Lighting fixtures: Hubbell Lighting, www.hubbelllighting.com, Winona Lighting, www.winonalighting.com, Ardee Lighting, www.ardeelighting.com; Range, refrigerator: Summit Appliance, www.summitappliance.com; Roofing, solar energy system: Petersen Aluminum Corp., www.pac-clad.com

Learn more about markets featured in this article: Washington, DC.

About the Author

Upcoming Events

  • Protecto Wall VP Standard Installation Video

    Webinar

    Register for Free
  • How Right-Sized Plumbing Saves Money, Saves Water, and Protects Wellness

    Webinar

    Register for Free
  • Building Careers from the Ground Up: The IUPAT Floor Covering Apprenticeship and Training Program

    Webinar

    Register for Free
All Events