University of Washington West Campus Housing Phase One, Seattle

Campus Housing / Grand

2 MIN READ

University of Washington West Campus Housing Phase One, Seattle
Mahlum
Seattle

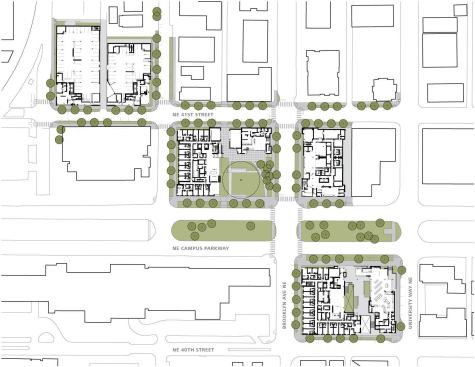
Phase one of this Seattle campus housing project by Mahlum entailed an unusually complex program. Not only was the firm charged with supplying shelter and amenities for 1,650 University of Washington students, it also had to establish a strong connection between the project and its surrounding neighborhood. “The site is removed from the rest of the campus; it’s more in the city,” says principal Anne Schopf, FAIA. Additionally, Mahlum needed to consider how students would travel to the main campus and how to ensure their security throughout the day and night. And it had to save a massive elm tree on the site.

Ultimately, that tree served as the heart of the project, which includes three residence halls and two apartment buildings. “The tree creates the ‘there’ there,” Schopf says. “It’s the center of gravity for the whole precinct.” It occupies a park that ties together the five structures and can be easily accessed by local residents. Ground-level retail spaces—a restaurant, grocery store, and café—provide another overlap of public and private, and add “eyes on the street” to enhance pedestrian safety.

For the buildings themselves, Mahlum made the most of inexpensive materials like vinyl windows, oversized brick, and perforated metal. “We came up with the idea of shifting windows, so each room is slightly different even though there are only three or four window types,” Schopf says. Tight envelopes limit energy use. “A great materials palette and interesting fenestration,” said one judge. “It’s a handsome project.”

View all 2013 RADA winners.


Project Credits

Design principal: Anne Schopf, FAIA
Principal in charge: Mark Cork, AIA, LEED AP
Project architects: Brian Jonas, Wes Hoffman, Maureen O’Leary, David Swenson, Chris Lamb, Dwayne Epp, Joseph Mayo, Brian Frey, AIA, LEED AP, Bryan Fish
Interior designer: Mahlum (Anne Schopf, Stacey Bender, Jeanelle Owens)
Landscape architect: Jennifer Guthrie, Gustafson Guthrie Nichol, Seattle
General contractor: John Gilson, Walsh Construction Co., Seattle, and Molly Mahan, W.G. Clark Construction Co., Seattle
Developer: Rob Lubin, University of Washington Housing & Food Services, Seattle
Structural engineer: Chris Duvall, Coughlin Porter Lundeen, Seattle
M/E/P Engineer: Paul Schwer, PAE Consulting Engineers, Portland, Ore.
Project size: 668,800 square feet (total)
Site size: 2.87 acres
Construction cost: $178 per square foot
Rental price: $7,992 to $9,600 per academic year
Units: 782
Photographer: Benjamin Benschneider


Product Details

Bathroom fittings: Delta deltafaucet.com
Bathroom fixtures: Kohler kohler.com
Cooktop: GE geappliances.com
Countertops: PaperStone paperstoneproducts.com
Dishwasher: GE geappliances.com
Doors: Marshfield marshfielddoors.com
Exterior siding (cement board): James Hardie jameshardie.com
Exterior siding (brick): Pacific Clay Products pacificclay.com
Flooring (carpet): Lees themohawkgroup.com
Flooring (ceramic tile): Royal Mosa mosa.nl
Flooring (linoleum): Armstrong armstrong.com
Garage doors: Cookson cooksondoor.com
Garbage disposal: InSinkErator insinkerator.com
Hardware: Corbin Russwin Co. www.corbinrusswin.com
HVAC equipment: Greenheck Fan greenheckfan.com
Insulation: Owens Corning owenscorning.com
Kitchen fittings: Delta deltafaucet.com
Kitchen fixtures: Elkay elkayusa.com
Lighting: Prescolite prescolite.com
Oven or range: GE geappliances.com
Paints/stains/wall finishes: Glidden Paint glidden.com
Particleboard: Roseburg Forest Products roseburg.com
Refrigerator: GE geappliances.com
Roofing: Malarkey Roofing Products malarkeyroofing.com
Windows: VPI Quality Windows vpiwindows.com

About the Author

Upcoming Events

  • Modernize Your Model Homes with Music

    Live Webinar

    Register for Free
  • Happier Homebuyers, Higher Profits: Specifying Fireplaces for Today’s Homes

    Webinar

    Register for Free
  • Sales is a Sport: These Tactics Are the Winning Play

    Webinar

    Register for Free
All Events