"The sexy thing is that you’re looking through this gauzy scre…
"The sexy thing is that you’re looking through this gauzy screen in the front," says our jury. In addition to good looks, this house generates its own energy. Using energy calculation software, the 1500 GSF house should use around 6000 kWh of electricity per year. The installed 3.6 kW solar PV system offsets this usage, creating a net-zero energy home.
Mark Boisclair
That sexy screen encloses a front courtyard that provides a barr…
That sexy screen encloses a front courtyard that provides a barrier between living spaces and the street.
Mark Boisclair
The screen along with deep overhangs shade the abundant glass on…
The screen along with deep overhangs shade the abundant glass on the front elevation.
Mark Boisclair
These homes are meant as a contemporary equivalent of the “cas…
These homes are meant as a contemporary equivalent of the “case study” homes of the 1960s- though built for their time and place, and with sustainability in mind.
Mark Boisclair
White walls and millwork reflect the light coming in primarily f…
White walls and millwork reflect the light coming in primarily from north- and south-facing sliding doors.
Mark Boisclair
Interiors are based on an open plan to maximize space and reduce…
Interiors are based on an open plan to maximize space and reduce building costs. One splurge were the floor-to-ceiling frameless doors for the few enclosed rooms.
Mark Boisclair
Drought-resistant landscaping and permeable hard-scaping are ide…
Drought-resistant landscaping and permeable hard-scaping are ideal for Arizona's mostly sunny with a chance of torrential rains climate.
Courtesy Colab Studio
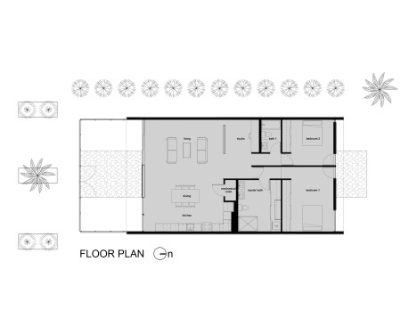
Floor plan
Courtesy Colab Studio
Elevations
Mark Boisclair
Computer-generated experimentation on the size of gaps in the sc…
Computer-generated experimentation on the size of gaps in the screen produced carefully modulated degrees of transparency that permit breezes to pass through, but also offers privacy at standing and sitting eye levels.
Award of Merit – Production, Semi-Custom, or Spec, 3,500 Square Feet or Less
Architect Matthew Salenger was able to talk the forward-thinking developer for this infill prototype project into seeing the value of a stunning but pricey steel screen to enclose a front courtyard. Not only did the screen’s good looks and experiential quality help sell the house as well as the second version being built next door, but it is also caught our jury’s attention: “The sexy thing is that you’re looking through this gauzy screen in the front. They absolutely put all their design dollars into that one move.”
“Putting the courtyard in front solved all of our design dilemmas,” Salenger explains. “It made sense to put living spaces up front but I didn’t want a door into a living room, plus there’s some kind of break between living and the street, and the big issue was that an interior courtyard would cost so much more in finishes.” That eye-catching element consists of rusted and sealed natural steel sheets sliced into strips of various widths and stacked at different angles. Computer-generated experimentation on the size of gaps in the screen produced carefully modulated degrees of transparency that permit breezes to pass through, but also offers privacy at standing and sitting eye levels.
According to Salenger, the design team still had some budget left to splurge on framless floor-to-ceiling interior doors and raw steel cladding on the rest of the exterior. The house also exceeds LEED Platinum requirements in energy-efficiency and other sustainable features.