This smart, economical renovation transformed the character of a…
This smart, economical renovation transformed the character of a quirky, builder-grade Tudor while leaving the building’s bones essentially intact.
Roger Wade
Modest additions of a porch and breakfast bay wear a roof plante…
Modest additions of a porch and breakfast bay wear a roof planted with meadow grasses.
Roger Wade
The remodeled kitchen and dining room.
Roger Wade
Interior, horizontal, kitchen, Villa di Famiglia Vita, Alta, Wyo…
Interior, horizontal, kitchen, Villa di Famiglia Vita, Alta, Wyoming; Ward + Blake Architects
Roger Wade
A new glass stair rail opens the center of the house to light fr…
A new glass stair rail opens the center of the house to light from above.
Roger Wade
Throughout the house, new, larger windows open to views of the T…
Throughout the house, new, larger windows open to views of the Teton Range.
The original house.
Ward-Bake Architects
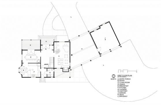
The first floor plan before renovation.
Ward-Bake Architects
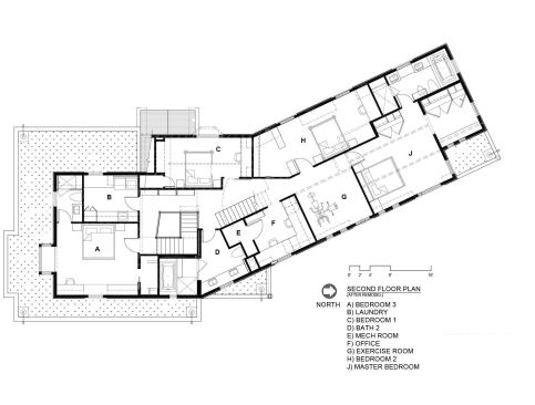
The second floor plan before renovation.
Ward-Bake Architects
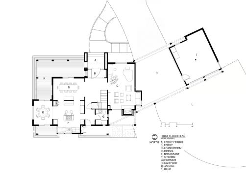
The first floor plan after renovation.
Ward-Bake Architects
The second floor plan after renovation.
Ward-Bake Architects
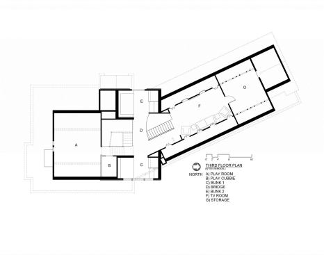
The third floor plan after renovation.
“A true renovation, done in an incredibly good way,” said one judge of this stem-to-stern makeover. “It doesn’t deny what it used to be.” That’s all the more remarkable, given the project’s starting point: a quirky, builder-grade Tudor from the 1980s. “It had been done on the cheap,” says owner/architect Mitch Blake, so when the time came to remodel, “we gutted it to the studs.” Because the family budget was limited, however, Blake left the building’s bones largely intact, using glazing and finishes to dramatically change its character.
New, larger windows open the house to a site studded with aspens and willows, and to views of the Teton Range. Cement board panels wrap the building’s perimeter walls, inside and out, quieting its façades and creating a link between the interior and exterior. The modest additions of a porch and breakfast bay wear a roof planted with meadow grasses. Throughout, the project achieves a polished and pulled-together look while wasting as little as possible of its raw material. As one judge noted, “it embraces its past and reinterprets it.”