MFEConceptCommunity 2016

MFEConceptCommunity 2016

Washington, Va., Residence

Custom Renovation / Merit Award

2 MIN READ

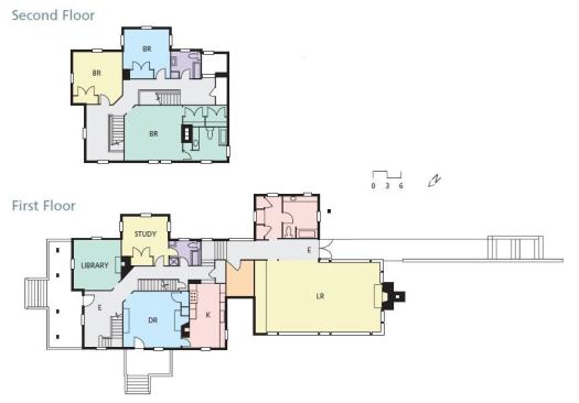
The clients for this rural Virginia renovation loved their 18th-century farmhouse. But they wanted a few items it didn’t have—an expansive entertaining space, a bathroom that was easily accessible from the outdoors, and a mudroom where they could put dirty shoes and coats before entering the main house. So they asked architect Bob Gurney to help them out.

Gurney gave them a three-part addition and renovation that honors the existing house and strengthens its connection to its pastoral site. “It’s agrarian Modernism, straight-up,” said one judge admiringly. A glass-walled pavilion added onto the home’s southwest side provides the casual living and dining area the clients were looking for while bringing in views of rolling hills and grazing horses. A clapboard structure behind it accommodates the mud-room and bath, its standing-seam metal roof and white-painted siding echoing those of the original building. And an entry hall, stairway, and remodeled kitchen act as the transitional spaces between the old house and its new addition. This last portion combines elements of the old house, like the original kitchen windows and a paneled pantry door, with Modernist elements such as large panes of glass and contemporary lighting.

Even the board-formed concrete chimney in the living room sneaks in an homage to the venerable farmhouse. Builders Michael Puskar and Chris Stanton used boards from an old barn on the site to make the forms, so the new chimney serves as a fossil of the property’s past. “It has the imprint of the old barn,” says Gurney. “We thought it would be a nice gesture.”

Project Credits
Entrant/Architect: Robert M. Gurney, FAIA, Architect, Alexandria, Va.
Builder: M.T. Puskar Construction Co., Alexandria
Interior designer: Ed Perlman, Washington, D.C.
Living space: 4,800 square feet (including 1,440-square-foot addition)
Site: Withheld
Construction cost: Withheld
Photographer: Paul Warchol

Resources: Bathroom/kitchen plumbing fittings: Dornbracht; Bathroom plumbing fixtures: Kohler; Dishwasher: Bosch; Entry and patio doors/windows: Hope’s; Fireplace: Heat-n-Glo; Garbage disposer: Franke; Hardware: FSB; Lighting fixtures: Artemide, Flos, Lightolier, and Task; Oven: Viking; Paints: Benjamin Moore; Refrigerator: Sub-Zero.

About the Author

Upcoming Events

  • Modernize Your Model Homes with Music

    Live Webinar

    Register for Free
  • Happier Homebuyers, Higher Profits: Specifying Fireplaces for Today’s Homes

    Webinar

    Register for Free
  • Sales is a Sport: These Tactics Are the Winning Play

    Webinar

    Register for Free
All Events