Weekend House on Lake Superior, Schroeder, Minn.

Custom / 3,000 Square Feet or Less / Merit

1 MIN READ

julie snow architects
minneapolis

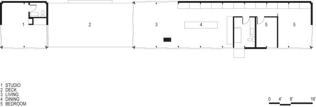
This weekend home in Minnesota exhibits an intimate knowledge of its forested surroundings. “They know the environment they’re working in,” said one judge. Its architect, Julie Snow, FAIA, owns the house with her husband, a mechanical engineer. She designed the building to rest on a platform, so as not to disturb the site’s natural water runoff patterns. Inside and out, it’s supremely uncluttered, the better to highlight Lake Superior views. “It’s designed to be about being in that place in the summer, winter, fall, and spring,” Snow notes. “But winter is pretty spectacular.”


Click here to see all 2011 rada winners.

Project Credits

principal in charge / project architect: Julie Snow, FAIA, Julie Snow Architects
general contractor: Brad Holmes, Rod & Sons Carpentry, Gilbert, Minn.
project size: 1,024 square feet (main house), 256 square feet (studio)
site size: 2.4 acres
construction cost: Withheld
photography: Peter Bastianelli-Kerze

product details

bathroom fixtures: Duravit, www.duravit.com, TOTO USA, www.totousa.com; cooktop: KitchenAid, www.kitchenaid.com; dishwasher: Bosch, www.bosch-home.com; exterior siding: Skatelite, www.skatelite.com; flooring: Royal Mosa, www.mosa.nl/us; hardware: Valli & Valli, www.vallivalli-us.com; insulation: Icynene, www.icynene.com; lighting fixtures: Citilights, www.citilights.com; oven: Warners’ Stellian, www.warnersstellian.com; refrigerator: Liebherr, www.liebherr.us; windows: Viracon, www.viracon.com

About the Author

Upcoming Events

  • Happier Homebuyers, Higher Profits: Specifying Fireplaces for Today’s Homes

    Webinar

    Register for Free
  • Sales is a Sport: These Tactics Are the Winning Play

    Webinar

    Register for Free
  • Dispelling Myths and Maximizing Value: Unlock the Potential of Open Web Floor Trusses

    Webinar

    Register for Free
All Events