West Shokan, N.Y., Residence

Custom Home 3,000 to 5,000 Square Feet / Merit Award

2 MIN READ

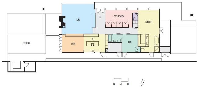
Along with spectacular views, the site of this weekend home in New York’s Catskill Mountains presented a stiff siting challenge: a precipitous slope underpinned by solid bedrock. Architect Audrey Matlock opted for a direct approach that also became the project’s central organizing principle. “We took a slice out of the hill and ran this 200-foot retaining wall,” she explains. The excavation produced a flat shelf on which to perch the building, a swimming pool, and some beautifully spare outdoor spaces. The retaining wall, 13 feet high and broken only by a cave-like opening for a walled spa area, provides a backdrop to the north that is as compelling in its way as the view that it faces.

The entry sequence leads guests along the south wall of the house, so they experience the topography, the view, and the architecture before they reach the front door. Inside, the house presents a radically abbreviated suite of materials: pigmented concrete at the floors, gray slate tile at the bearing walls, and dark-stained oak for partitions and cabinetry. The grayscale interior contrasts dramatically with the full-color world outside. The concrete floor spreads beyond the house to the outdoor living spaces. A massive beam that supports the roof at the living room follows suit, piercing the glass wall and lending a bit of enclosure to a patio area that also includes an outdoor fireplace.

The judges were particularly impressed with the house’s minimalist detailing, its fluid relationship between indoor and outdoor spaces, and its restrained palette of colors. Said one, “It’s the unusual gray-and-white house that’s somehow still warm.”

Project Credits
Entrant/Architect:
Audrey Matlock, New York City
Builder: The CM Co., Mount Tremper, N.Y.
Living space: 3,500 square feet
Site: 5 acres
Construction cost: $300 a square foot
Photographer: Peter Aaron

Resources: Bathroom plumbing fittings: Dornbracht; Brick products: Bisazza; Hardware: Hafele; Oven: Miele; Patio doors/windows: EFCO.

About the Author

Upcoming Events

  • Protecto Wall VP Standard Installation Video

    Webinar

    Register for Free
  • How Right-Sized Plumbing Saves Money, Saves Water, and Protects Wellness

    Webinar

    Register for Free
  • Building Careers from the Ground Up: The IUPAT Floor Covering Apprenticeship and Training Program

    Webinar

    Register for Free
All Events