A Luxurious Master Bath Graces a Compact Infill House

3 MIN READ

The Bouldin Creek neighborhood of Austin, Texas, is hot. Located a few miles from the heart of downtown, this working-class community of charming one-story bungalows is rapidly becoming the city’s new hipster enclave, and property values are surging.


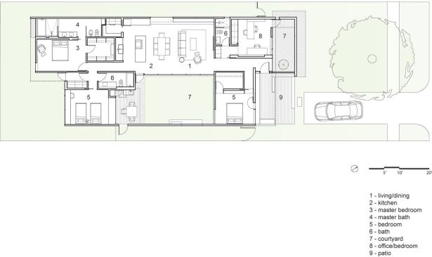
Enter a young builder with a small family. After purchasing an undersized lot in the dense neighborhood, he asked Alterstudio Architecture to design an economical home that provides privacy while maintaining a direct connection to the outdoors.

Though the house had to be modest, the builder also wanted something stunning enough to show potential clients and a home worthy of its up-and-coming surroundings. “The lot has a degree of publicity because it’s literally a half block from some of the coolest restaurants in the area,” says Kevin Alter, principal of the Austin-based firm. It had to strike a dramatic presence in the burgeoning community, he adds.

But there was another important element the clients requested: It had to have a killer master bath, says Alter. “They spend a fair amount of time in the bathroom, so they wanted it to be a little bit of luxury in a fairly straightforward house.”

Measuring a generous 21 feet by 6 feet, the bathroom occupies a good amount of space in the relatively small, 2,051-square-foot courtyard home. Alterstudio tucked the room at the back of the house to give the clients some privacy, but because the home has a 10-foot setback from the adjacent property, the designers had to get creative.

To solve the privacy issue, the designers inserted a large fixed-glass picture window that brings in light, but they specified a frosted lower section. Strategically placed plantings cast dancing shadows against the window’s exterior. “You can see up to the sky, you can get light into the whole space, and you get privacy,” Alter says.

One side of the long room contains the toilet and bidet, while the other side holds the double vanity, shower, and tub. Instead of designing a conventional all-in-one tub/shower, Alterstudio designed a wet room in which the shower and the tub are separate but occupy the same space. Popular in Europe, the designs are increasingly in demand stateside because users don’t have to climb into the tub to shower and everything can get wet.

“We are proposing them more and people are liking them,” Alter explains. He likes them for a couple of reasons: “It’s not the nicest thing in the world to shower in a tub, so we’re often doing a separate tub and shower.” In addition, he says, the design gives a sense of spaciousness.

To create a spalike feel, the designers specified a custom tub tiled in gray limestone and covered the adjacent surfaces in the same material. Clever details, such as the recess under the mirror for lighting and a linear storage niche in the wet room, extend the custom feel. “We always put in niches for homeowners,” Alter says. “This one is tall with a couple of glass shelves for storage.”

A custom walnut cabinet anchors the wall like a piece of furniture. Topped with granite and fitted with double sinks and faucets from Hansgrohe’s Axor line, the wall-mounted piece features pull-out drawers and a sliding compartment at the bottom for towels and sundries. “That was something they wanted and may have been an homage to the ’50s,” Alter says. “But we like a lot of drawers and storage in the bath because you always have a lot of small stuff.”

The final touch on the space is the small-format, white penny tile that Alterstudio used to tie the wet room and the main bath together. The flooring, the firm says, creates a ruglike texture and pattern among the bath’s more linear nature, “which achieves a classic modern elegance.”


About the Author

Upcoming Events

  • Protecto Wall VP Standard Installation Video

    Webinar

    Register for Free
  • How Right-Sized Plumbing Saves Money, Saves Water, and Protects Wellness

    Webinar

    Register for Free
  • Building Careers from the Ground Up: The IUPAT Floor Covering Apprenticeship and Training Program

    Webinar

    Register for Free
All Events