A Southern California Bath Delivers a Peak Experience at Human Scale

2 MIN READ

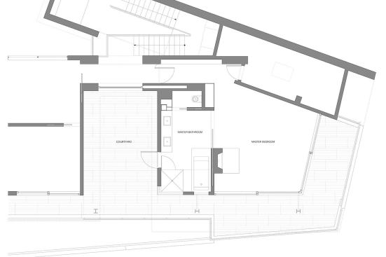
In a 4,600-square-foot house, architect Margaret Griffin devoted only 170 square feet—less than 4%—to this master bath, but it turns out that was just enough. Taking advantage of the home’s high ceilings and lofty views of downtown Los Angeles, Griffin created a crisply composed space that marries intimacy with expansiveness.


Rich materials highlight a straightforward geometry

“It’s actually a pretty simple room,” says Griffin, who gave the space a rectangular plan with an enclosed water closet at one end. “The tub and shower are these sculptural elements that form the other edge.” Clad with limestone slabs that contrast with the dark walnut floor, the tub surround extends into the shower enclosure, where it serves as a bench. “The enclosure itself is done in a super-minimal way, with as little hardware as possible,” Griffin adds. Twin lavatories float over open shelves, intruding only minimally into the room’s volume.

Sight lines expand the sense of space

Griffin animated the bath with carefully composed window and door openings. “When you stand in the shower, there’s a slot window that frames this amazing view of the city,” she says. Vertical glazing rises from the tub deck to the ceiling, opening the room to the sky, while a ceiling-height mirror reflects the view into the adjacent master bedroom. The two spaces adjoin via an 8-foot-wide sliding door, Griffin notes, “so when the door is open, both rooms feel bigger.”

Outdoor access is icing on the cake

At its opposite wall, a frosted glass door opens onto a roof deck, where a cleft between the building’s two principal volumes forms a small courtyard. Project manager Chris Angelikis mounted a shower head and controls on an outside wall there, so the owner—an avid surfer—can rinse off before entering the house. With its concrete topping slab, the deck required only a floor drain to also serve as a curbless shower pan.


About the Author

Bruce D. Snider

Bruce Snider is a former senior contributing editor of  Residential Architect, a frequent contributor to Remodeling. 

Upcoming Events

  • Happier Homebuyers, Higher Profits: Specifying Fireplaces for Today’s Homes

    Webinar

    Register for Free
  • Sales is a Sport: These Tactics Are the Winning Play

    Webinar

    Register for Free
  • Dispelling Myths and Maximizing Value: Unlock the Potential of Open Web Floor Trusses

    Webinar

    Register for Free
All Events