Bath: Common Ground

1 MIN READ

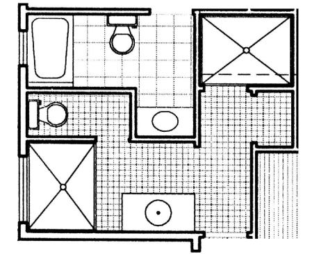
While the kitchen is the top-floor living hub, the master bath is service central for lower-level sleeping quarters. To conserve space and energy, Olberding devised a smaller-scale bath that cleverly packs in laundry equipment and ample storage “to make up for the lack of storage” elsewhere, she says. Among the tricks she used to stretch the not quite 120-square-foot space: clustering the cabinets in floor-to-ceiling banks and using bright, natural woods to lighten the visual load.

The core feature—a two-story concrete-block wall that contains the building’s mechanical systems and provides load-bearing support for the roof and thermal mass for passive heating and cooling—serves as the main wall for both the bath and the kitchen above. Olberding says placement of both rooms was a matter of common sense. The bathroom and kitchen are areas people tend to occupy first thing in the morning, so positioning them next to the concrete block not only creates a cozy environment, it shortens plumbing runs as well. “The idea was to use less material and mitigate the dissipation of heat as the hot water passes through the pipes,” she explains.

The room’s recycle-and-reuse spirit is evident throughout. Cabinet doors and drawer fronts were milled from logs found at the bottom of the nearby Columbia River. The homeowner did his part, too, fabricating the sink from recycled aluminum and searching through discarded granite remnants for slabs that could serve as the counter and backsplash.

About the Author

Shelley D. Hutchins

Shelley D. Hutchins, LEED AP, writes about residential construction and design, sustainable building and living, and travel and health-care issues.

Upcoming Events

  • Protecto Wall VP Standard Installation Video

    Webinar

    Register for Free
  • How Right-Sized Plumbing Saves Money, Saves Water, and Protects Wellness

    Webinar

    Register for Free
  • Building Careers from the Ground Up: The IUPAT Floor Covering Apprenticeship and Training Program

    Webinar

    Register for Free
All Events