bath: shower play

1 MIN READ

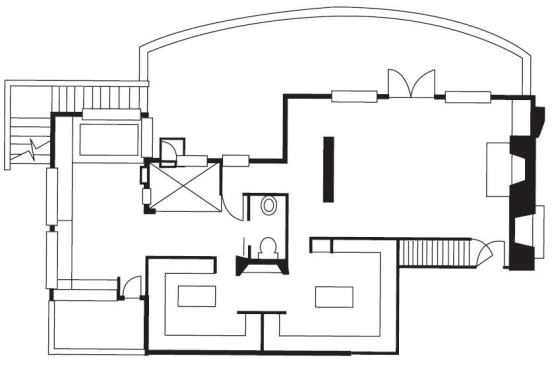
Hidden behind a 7-foot-tall, free-floating headboard is a small passage to a simply sybaritic master bath. Its spare design belies the decadent offerings contained within the 270-square-foot space. A steel soaking tub contoured for two dips below the limestone tile floor. A tub-to-ceiling window gives glimpses of a distant Austin skyline through a screen of dense foliage. For less leisurely ablutions, an adjoining glass shower has a rainfall shower head and a wall of sprays. Its steel-and-glass double doors access a private terrace, so “you can open the doors wide while showering, and it becomes an outdoor shower,” says Clark.

The arrangement has a practical side as well. The terrace has stairs to the pool area, so the owners can go back and forth without dripping through the house. Uninterrupted limestone floors from bath to terrace link the indoor and outdoor areas. And the bath’s blue-green glass tiles give the walls an aquatic hue.

Across the room an L-shaped vanity runs the length of two walls, providing plenty of storage for him and her. At the far end of the limestone counter, a Juliet balcony overlooks the front of the house. An enclosed water closet occupies the center of a circular traffic zone between the bath, the master bedroom, and a pair of walk-in closets, “so if you need to use it in the middle of the night it’s convenient,” says the ever-thoughtful architect.

About the Author

Shelley D. Hutchins

Shelley D. Hutchins, LEED AP, writes about residential construction and design, sustainable building and living, and travel and health-care issues.

Upcoming Events

  • Build-to-Rent Conference

    JW Marriott Phoenix Desert Ridge

    Register Now
  • Builder 100

    Dana Point, CA

    Register Now
  • Protecto Wall VP Standard Installation Video

    Webinar

    Register for Free
All Events