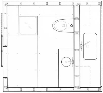
netshed wetroom, astoria, ore.

bath / grand

1 MIN READ

chadbourne + doss architects, seattle

“Poetic and transformative” is how the jury described this bathroom. The 8-foot-by-8-foot cube elevates the discussion of what this necessary room should and can be, they said. Placed inside a historic warehouse formerly used for repairing and storing fishing nets, the cube is constructed of Douglas fir salvaged from an old dock on the property. Gaps left between the feather-butted planks honor the old warehouse building, which seasonally shows cracks in its weathered exterior.

Inside the bathroom, a hole in the floor architect Daren Doss, AIA, calls a “river light” reveals views of the water below. At night, he says, the salmon are attracted to the bathroom light and congregate beneath the hole. The rest of the floor, the wet wall, and the vanity are fabricated of brushed aluminum. Acrylic panels line the wood skin for acoustical privacy, while letting the light shine through.

“We wanted to express the materials as poetry,” Doss says, “by letting them be raw but using them in unusual ways.”

principals in charge / project architects: Lisa Chadbourne and Daren Reid Doss, AIA, chadbourne + doss architects
general contractor: Daren Reid Doss, AIA, chadbourne + doss architects
metal fabricator: J&H Boatworks, Astoria
project size: 64 square feet
site size: 1.35 acres
construction cost: $109 per square foot
photography: Thomas M. Barwick

product specs
bathroom plumbing fittings:Whitehaus; bathroom plumbing fixtures:TOTO USA; garbage disposer:In-Sink-Erator; hardware:Richards-Wilcox; interior paneling:American Acrylic Corp. (LUMAsite); kitchen plumbing fixtures:Hansgrohe; lighting fixtures: Cooper Lighting (Halo); paints/stains:Benjamin Moore & Co., Cabot

About the Author

Shelley D. Hutchins

Shelley D. Hutchins, LEED AP, writes about residential construction and design, sustainable building and living, and travel and health-care issues.

Upcoming Events

  • Protecto Wall VP Standard Installation Video

    Webinar

    Register for Free
  • How Right-Sized Plumbing Saves Money, Saves Water, and Protects Wellness

    Webinar

    Register for Free
  • Building Careers from the Ground Up: The IUPAT Floor Covering Apprenticeship and Training Program

    Webinar

    Register for Free
All Events