Ridgeline House Bath, Pasadena, Calif.

Custom Bath

1 MIN READ

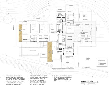
This renovation blew the lid off a dark, unremarkable master bath. The new roof floats above high fixed glass, while the room’s redwood-paneled walls extend outdoors to enclose a private courtyard topped by an open-air skylight. “It’s one single wet space with this glazing line that slices through it,” explains architect David Montalba. The garden wall, glazed with semi-transparent panels, reads as the room’s exterior boundary. The white terrazzo floor inside makes a subtle transition to acid-washed concrete at the courtyard, furthering the impression of indoor/outdoor space.

The terrazzo surface takes on a 3D quality as it folds down into a sunken tub shower and rises in a monolithic half-wall that bounds the shower’s deep end. Montalba based the splash-containing height of the enclosure on empirical data, collected by the architect himself, in situ, wearing a wet suit. The jury spoke approvingly of the garden aspect of the space. Said one judge, “It’s definitely an extrovert’s bath.”


Entrant/Architect: Montalba Architects, Santa Monica, Calif.; Builder: Sarlan Builders, Beverly Hills, Calif.; Landscape designer: Elysian Landscapes, Los Angeles; Living space: 441 square feet; Construction cost: Withheld; Photographer: Dominique Vorillon.


Product details

Bathroom fittings: Dornbracht, www.dornbracht.com, Hansgrohe, www.hansgrohe-usa.com; Bathroom fixtures: Duravit, www.duravit.com, Zuma Collection, www.zumacollection.com, Geberit, www.geberitnorthamerica.com, Toto USA, www.totousa.com; Doors: Fleetwood, www.fleetwoodusa.com; Lighting fixtures: Modular, www.modularinternational.com, Liton, www.liton.com, Contrast, www.contrastlighting.com, Bartco, www.bartcolighting.com, Tokistar Lighting, www.tokistar.com; Paints/stains/wall finishes: ICI Paints, www.icipaints.com, Rustoleum, www.rustoleum.com; Skylights/roof windows: Lane Aire, www.lane-aire.com

About the Author

Bruce D. Snider

Bruce Snider is a former senior contributing editor of  Residential Architect, a frequent contributor to Remodeling. 

Upcoming Events

  • Happier Homebuyers, Higher Profits: Specifying Fireplaces for Today’s Homes

    Webinar

    Register for Free
  • Sales is a Sport: These Tactics Are the Winning Play

    Webinar

    Register for Free
  • Dispelling Myths and Maximizing Value: Unlock the Potential of Open Web Floor Trusses

    Webinar

    Register for Free
All Events