Southampton, N.Y., Residence

Custom Bath / Merit Award

1 MIN READ

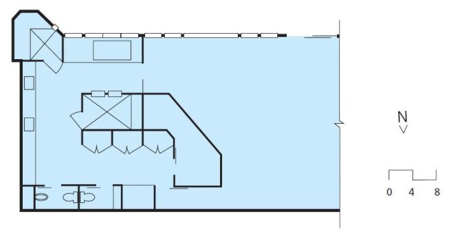
This master bath, in an eclectic 1970s Modernist house by noted architect Norman Jaffe, had plenty of elbow room, but its contents were in need of a major tune-up. In spite of the house’s beachfront site, architect Page Goolrick says, “It had not really taken advantage of the views very well.” The tub was too low and too far from the window wall. The corner shower, virtually surrounded by exterior walls, had only “a little sliver of a window. It wasn’t very inviting.” Without altering the room’s footprint, Goolrick developed a new scheme that freshened things up nicely.

An elevated tub now hugs the outside wall. A large two-place shower stands in the center of the room, sharing the tub’s ocean view through a pair of high windows of its own. Goolrick converted the original shower to a steam room, relocated and reduced two oversize toilet compartments, and replaced two separate sink stations with a single 20-foot-long concrete-topped vanity. Faced in oak to match the original ceiling and wall paneling, the cabinet floats against a wall that is mirrored both above and below it. Other materials—watery blue ceramic tiles at the floor, blue glass tiles in the shower—reflect the house’s proximity to the sea. “Almost anywhere you are in here you see the ocean,” Goolrick says, “so it’s really pulled into the room.” Our judges approved. “I could picture myself going into this bath in the morning,” said one. “It gives you a good feeling.”

Entrant/Architect: Page Goolrick, New York City
Builder: Breitenbach Builders, Bridgehampton, N.Y.
Project size: 750 square feet
Construction cost: $180 a square foot
Photographer: John M. Hall

Resources: Bathroom plumbing fittings/fixtures: Kohler and Lefroy Brooks; Countertops: Get Real Surfaces; Entry doors/exterior siding/windows: Pella; Paint: Benjamin Moore; Skylights: Velux.

About the Author

Upcoming Events

  • Protecto Wall VP Standard Installation Video

    Webinar

    Register for Free
  • How Right-Sized Plumbing Saves Money, Saves Water, and Protects Wellness

    Webinar

    Register for Free
  • Building Careers from the Ground Up: The IUPAT Floor Covering Apprenticeship and Training Program

    Webinar

    Register for Free
All Events