Spanish Oaks Spa Bath

This is no ordinary soaking tub.

1 MIN READ

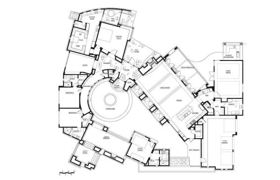
Courtyards figure prominently in this showcase home, which was originally designed and built as part of a Lance Armstrong Foundation fundraiser. One of them, a private courtyard off the master suite, allowed the architects to have some fun with the bath layout.

Divided into wet and dry areas, the L-shaped space opens with an expansive walk-in closet flanked by his-and-hers vanities, then doglegs into a wet area, where the flooring shifts from slate to river rock. Here, water cascades from a ceiling-mounted faucet into a 3,500-pound, handcut granite soaking tub, which the builder installed using hydraulic dollies.

“They basically had one chance to drop it in exactly the right spot, and they nailed it,” says architect Bob Wetmore. “The waterfall comes from the ceiling, and there is absolutely no splash.”

Behind the tub, a massive pivot door connects an open shower to a private outside play area with hot tub spa, pool, and fireplace.

Entrant/Architect: Cornerstone Group Architects, Austin, Texas Builder: Emerald Crest Development, Austin

Learn more about markets featured in this article: Austin, TX.

About the Author

Upcoming Events

  • Happier Homebuyers, Higher Profits: Specifying Fireplaces for Today’s Homes

    Webinar

    Register for Free
  • Sales is a Sport: These Tactics Are the Winning Play

    Webinar

    Register for Free
  • Dispelling Myths and Maximizing Value: Unlock the Potential of Open Web Floor Trusses

    Webinar

    Register for Free
All Events