Cable Lake Guest House, Cable, Wis.

Cable, Wis.

1 MIN READ

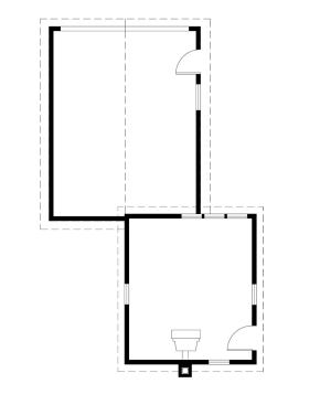
Homespun and efficient, this tiny cabin shows what’s possible in 240 square feet. Built in the 1920s, the original shelter (with adjoining boathouse) couldn’t be expanded, yet the owners wanted it converted into a guest retreat to complement the main cabin on a 10-acre lakefront property. Albertsson Hansen Architecture replaced the existing windows, wrapped the corner with two new windows to create panoramic views of the lake, and freshened up the exterior with a standing seam metal roof, new doors, and new siding to match the original. The firm also added new doors and an outdoor shower plumbed to an exterior wall. The cozy interior now houses a small kitchenette, a half bath and water heater, a wood stove, a queen bed, and a small seating area. The restored boat storage bay sports racks for kayaks, a scull, and a 1960s Chris-Craft power boat.

SPECIAL FOCUS
Category: Outbuilding
Entrant/Architect: Albertsson Hansen Architecture, Minneapolis
Builder: Haan Enterprises, Cable, Wis.
Landscape architect: Close Landscape Architecture, Minneapolis

Learn more about markets featured in this article: Minneapolis-St. Paul, MN.

About the Author

Upcoming Events

  • Happier Homebuyers, Higher Profits: Specifying Fireplaces for Today’s Homes

    Webinar

    Register for Free
  • Sales is a Sport: These Tactics Are the Winning Play

    Webinar

    Register for Free
  • Dispelling Myths and Maximizing Value: Unlock the Potential of Open Web Floor Trusses

    Webinar

    Register for Free
All Events