Tim Griffith
Without a clear boundary from the master bedroom, the traditiona…
Tim Griffith
Without a clear boundary from the master bedroom, the traditiona…

An Arts and Crafts kitchen renovation in Minneapolis, Minn.

A Southern California kitchen blends seamlessly into a living/dining room and deck.

A dramatically integrated master bedroom and bath in San Francisco.

A modern master bath frames a prairie view.
The Ludwig Residence had a lot going for it: location, elevation, water views, and a pedigree (it once belonged to singer Eddie Fisher).
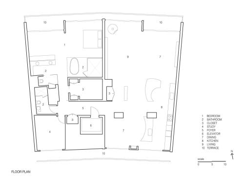
Spanning the penthouse level of a San Francisco high-rise, it overlooked the city’s downtown to the south and a broad sweep of the San Francisco Bay to the north. But with four bedrooms and four baths, the floor plan stymied outward views at every turn. Fortunately, says architect Craig Steely, “the owners didn’t need that many organized rooms, so we blew out all the walls.” Dividing the resulting space along the last bearing partition that remained, Steely devoted nearly half to a master suite, whose dramatically integrated bedroom and bath share fully in both the volume and the view.
“The bathroom takes its place in the middle of the bedroom suite,” Steely says. But without a clear boundary, the traditional bathing functions float apart to establish their own distinct identities. A two-sided lavatory peninsula emerges from the west wall, its mirror and its floating, figured-walnut cabinet supported by a slender, straplike column of gun-blue steel. An etched-glass box conceals the toilet compartment. The vessel tub and shower enclosure share a glass-tiled corner plinth that lifts them above the room’s ipe floor. “It’s an organizational device,” Steely explains, one that defines the bathing area without containing it.
The bathroom elements’ sculptural forms and contrasting materials generate visual interest in the sparsely furnished space, and their layout infuses the owners’ daily routines with views of the Golden Gate Bridge, Alcatraz, and boat traffic on the bay. But the visual exposure is strictly a one-way proposition, Steely assures. From the bathing area, he says, “you’re looking through the bedroom to the view, so it’s private. You’re not right at the window; you’re in the middle of the space.”