City Place Live-Work Lofts, Santa Ana, Calif.

Santa Ana, Calif.

1 MIN READ

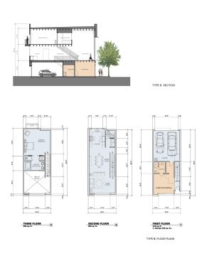
Retail is all about visibility, so packing as many storefronts as possible along the street edge of this live/work project was a priority. That meant specifying skinny units that were either 14 or 19 feet wide. The challenge, says architect Steven Ehrlich, became avoiding monotony on the outside and claustrophobia on the inside.

It helped that the 72 units don’t march in a straight line, but rather hug a curved street in a master planned community. But to further avoid redundancy, Ehrlich grouped the units in “blocks” and delineated each residence using a wide palette of exterior finishes, including flat panels of cement board, horizontal cement siding, stucco, and Corten steel (designed to “rust” to a coppery patina).

The townhome interiors have a spacious feel despite their width, thanks to double-height living room ceilings with huge street-front windows that bring light inside. “What we didn’t have in width we made up in volume,” Ehrlich says. Each layout includes an alley-entrance garage, first-floor office/retail space level with a restroom in back, second-floor living and kitchen areas, and a bedroom in a closed loft configuration on the third level. To channel light into the deepest parts of the plan, bedroom lofts are outfitted with operable casement windows overlooking the living room.

As befits the loft concept, the basic model’s finish is … well, basic. The standard floors are finished sheets of plywood, and the floor/ceiling joists are left open with exposed plumbing and electrical. The stairs are steel. “We wanted it somewhat raw,” says Ehrlich.

GRAND
Category: Live/Work project
Entrant/Architect: Ehrlich Architects, Culver City, Calif.
General contractor: American Constructors, Huntington Beach, Calif.
Developer: Bisno Development, Los Angeles
Landscape architect: SWA Group, Laguna Beach, Calif.

Learn more about markets featured in this article: Los Angeles, CA.

About the Author

Upcoming Events

  • Happier Homebuyers, Higher Profits: Specifying Fireplaces for Today’s Homes

    Webinar

    Register for Free
  • Sales is a Sport: These Tactics Are the Winning Play

    Webinar

    Register for Free
  • Dispelling Myths and Maximizing Value: Unlock the Potential of Open Web Floor Trusses

    Webinar

    Register for Free
All Events