Compass Veterans’ Center

Compass Veterans' Center, Renton, Wash.

1 MIN READ

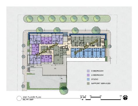
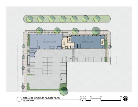
Talk about creative. This project leveraged funds from no fewer than 11 sources to provide 58 much-needed rental units for homeless veterans and their dependents. Handsome architecture notwithstanding, each floor includes counseling and support services, common spaces, a communal kitchen and dining area for singles, an activity center for kids and teens, a family learning lounge, and a computer center.

The design team kept costs in check with a structure that includes three stories of panelized wood frame construction over one level of post-tension slab and no underground parking. The exteriors are an affordable, yet sophisticated mix of masonry, metal, and cement board with lively colors and accents. With rents ranging from $163 to $241 per month, it’s no wonder this project is expected to become a national model for new V.A. projects.

Details

Award: Grand for Affordable Project – 30 du/acre or more

Builder: Synergy Construction

Developer: Compass Housing Alliance

Architect/Designer: Baylis Architects

Interior Design: Sechrist Design Associates

Learn more about markets featured in this article: Seattle, WA.

About the Author

Upcoming Events

  • Protecto Wall VP Standard Installation Video

    Webinar

    Register for Free
  • How Right-Sized Plumbing Saves Money, Saves Water, and Protects Wellness

    Webinar

    Register for Free
  • Building Careers from the Ground Up: The IUPAT Floor Covering Apprenticeship and Training Program

    Webinar

    Register for Free
All Events