Conover Commons, Redmond, Wash.

Redmond, Wash.

1 MIN READ

For many high-tech professionals, living close to work means giving up the single-family home and yard and settling for an attached townhouse or condo in an urban infill location.

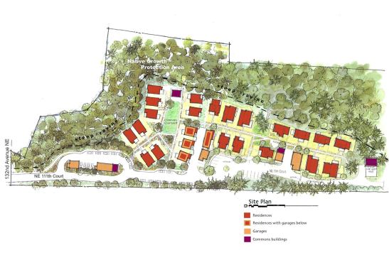
Not so at Conover Commons, one of several small pocket communities masterminded by The Cottage Co. and Ross Chapin Architects. Located just two miles from Microsoft’s world headquarters, the little village, which orients 12 close-knit cottage homes around shared gardens and greenbelts, is just a short skip to jobs, shopping, entertainment, and recreational activities.

But you’d never know it. Wetland conditions and preserved forest create natural buffers to give the neighborhood a feeling of privacy and serenity. “It’s a very unique site,” says Linda Pruitt, principal and owner of The Cottage Co.

And a sustainable one at that. Ever conscious of its carbon footprint, the 9.5 acre project, which secured a 4-star BuiltGreen rating, makes efficient use of this unwanted scrap of land (deemed by most developers to be too small for their purposes). More than half of the jobsite waste was recycled. That included felled trees, which were milled and used in the project’s construction.

MERIT
Category: Single-family detached community
Entrant/Builder/Developer: The Cottage Co., Seattle
Architect: Ross Chapin Architects, Langley, Wash.
Land planner: Triad Associates, Kirkland, Wash.

Learn more about markets featured in this article: Seattle, WA.

Upcoming Events

  • Happier Homebuyers, Higher Profits: Specifying Fireplaces for Today’s Homes

    Webinar

    Register for Free
  • Sales is a Sport: These Tactics Are the Winning Play

    Webinar

    Register for Free
  • Dispelling Myths and Maximizing Value: Unlock the Potential of Open Web Floor Trusses

    Webinar

    Register for Free
All Events