‘Horizontal’ Rental Community Near Phoenix Raises Eyebrows

Christopher Todd Communities reports 1,000 people have indicated interest in 136-home community.

1 MIN READ
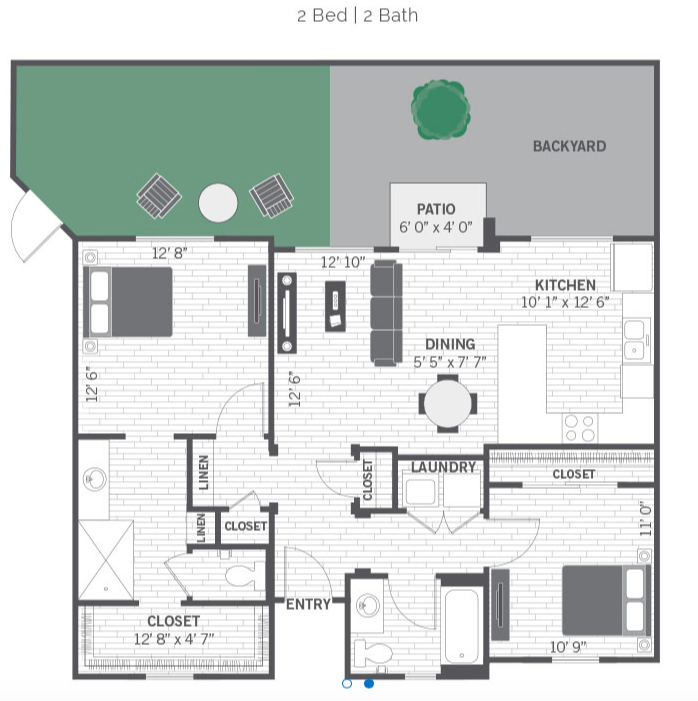
Rents on this 2 bed, 2 bath home start at $1,350 a month.

Rents on this 2 bed, 2 bath home start at $1,350 a month.

Christopher Todd Communities’ first luxury, gated, rental home community in Surprise, Arizona, near Phoenix, is apparently attracting attention. The company reports some 1,000 people have signed up on the community “interest list.”

The is comprised of 136 single-family, single-story rental homes with private backyard living and smart home technology. “We never dreamed our first community would command this much attention,” said Todd Wood, CEO of Christopher Todd Communities.

The development company is creating “horizontal” rental communities, an alternative to traditional multi-family housing which is typically vertical with two or more stories in height. All Christopher Todd Communities’ homes are one- or two-bedrooms, single story, and pet-friendly. “Our company mission is to create a new way to live,” said Wood.

“We have not advertised the community, other than some signage along the construction fencing, social media outreach and publicity,” noted Wood.

To manage the volume of interest in a fair way, the company is unveiling an Online Priority Reservation Assurance Program. Until October 17, those on the interest can make a refundable deposit of $150 and be included in the opportunity to lease one of the homes that will be available beginning in December and on into early 2018.

Chances are improved the earlier a prospective resident makes the deposit as each is time-stamped based on receipt of deposit. After October 17, all participants will be notified as to their order in the selection. In the event an interested person does not receive the opportunity to lease in the first community, they will be given priority in another Christopher Todd Communities development or receive a refund.

Christopher Todd Communities has three additional communities under construction in the Phoenix metro area, and by year end construction will have started on a fifth.

Upcoming Events

  • Protecto Wall VP Standard Installation Video

    Webinar

    Register for Free
  • How Right-Sized Plumbing Saves Money, Saves Water, and Protects Wellness

    Webinar

    Register for Free
  • Building Careers from the Ground Up: The IUPAT Floor Covering Apprenticeship and Training Program

    Webinar

    Register for Free
All Events