Custom Home March-April 2010 Case Study: Sonoma Flow Architec…
Custom Home March-April 2010 Case Study: Sonoma Flow Architect and interior designer: zumaooh, Oakland, Calif.; Builder: Caletti Jungsten Construction, Mill Valley, Calif.; Photographer: David Wakely Photography. The metal overhead grid shades the kitchen and edges of the east/west-oriented pavilion, its slats angled to block direct sun during the day.
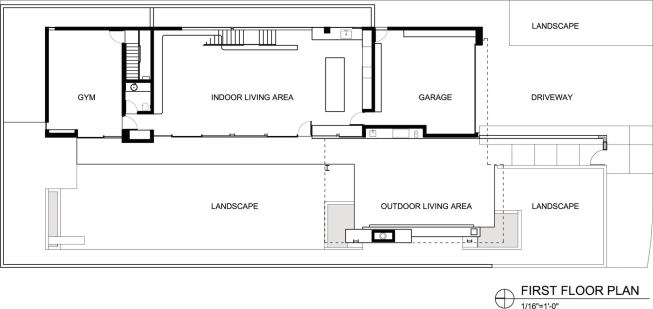
Designed as a family hub for outdoor entertaining, the pool pavi…
Designed as a family hub for outdoor entertaining, the pool pavilion houses three distinct living spaces. Slotted between the open-air kitchen and the cedar-clad staircase volume is the great room, which adapts to inclement weather with sliding glass doors. Two full baths flanking the U-shaped staircase are accessible from inside and out.
Casey Dunn
Designed for frequent entertaining, the full kitchen includes a …
Designed for frequent entertaining, the full kitchen includes a grill, oven, dishwasher, refrigerator, and sink.
Casey Dunn
Western red cedar slats close off the kitchen and media center.
Casey Dunn
The thick masonry walls are oriented to deflect winter’s north…
The thick masonry walls are oriented to deflect winter’s northwest winds and collect prevailing summertime breezes.
Julius Shulman + Juergen Nogai
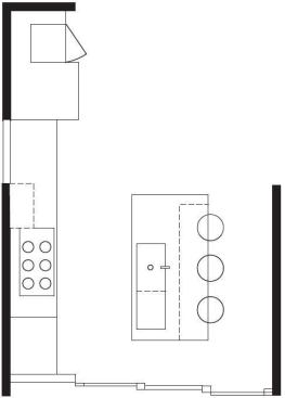
Sight lines from the kitchen and bath into other rooms expand th…
Sight lines from the kitchen and bath into other rooms expand the perceived size of both spaces. Prodema, a resin-bonded cellulose product with a natural wood veneer, tops the dining table.
Julius Shulman + Juergen Nogai
Sight lines from the kitchen and bath into other rooms expand th…
Sight lines from the kitchen and bath into other rooms expand the perceived size of both spaces.
A small outdoor kitchen can be hidden behind barn doors.
The airy destination draws people out of the house into a protec…
The airy destination draws people out of the house into a protected yet open-air room that accommodates all manner of activities. “Its purpose was to provide space for dining or entertaining, while engaging the house visually and experientially with the landscape,” architect Audrey Matlock says.
Daproza, Johanna
Derek Rath
The Hover House experiments with uniting the front and rear yard…
The Hover House experiments with uniting the front and rear yards on a small urban lot.
Derek Rath
Pushing the house to the long side of the lot allows the outdoor…
Pushing the house to the long side of the lot allows the outdoor spaces to flow.
Courtesy Glen Irani Architects
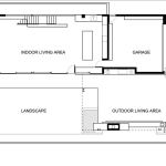
First-floor plan.
Lara Swimmer
Lara Swimmer
Lara Swimmer
Residential Architect November-December 2009 K + B Studio pro…
Residential Architect November-December 2009 K + B Studio project: 543 House, Venice, Calif.; architect: Callas Shortridge Architects, Culver City, Calif.; general contractor: Herman Construction Co., Westlake Village, Calif.; resources: bathroom and kitchen fittings: Dornbracht Americas; bathroom fixtures: Duravit USA; countertops: DuPont (Corian); oven: Miele; patio doors: Fleetwood Windows & Doors; refrigerator: Sub-Zero. Steel cabinets form a unified front with the stainless appliances. Teak cabinets above inject a note of warmth. The island picks up on the wall assembly's nested "L" shapes and Corian counter.
Interior elements deploy an abbreviated palette of materials in …
Interior elements deploy an abbreviated palette of materials in broad, simple forms. A plate of cold-rolled steel serves as a backdrop for the patio's gas fireplace.
Interior elements deploy an abbreviated palette of materials in …
Interior elements deploy an abbreviated palette of materials in broad, simple forms. A sliding glass wall system allows the kitchen to become an indoor/outdoor room.
2009 RADA kitchen / merit live, dine, sleep, reno, nev. prin…
2009 RADA kitchen / merit live, dine, sleep, reno, nev. principal in charge / project architect / interior designer: Jack Hawkins, AIA, LEED AP, Hawkins & Associates; general contractor: Darin Murphy, MB Construction, Reno, Nev.; cabinetmaker: Ben Wilborn, Wilborn Woodworking, Reno; steel fabricator: Paolo Cividino, Tutto Ferro, Reno; project size: 1,000 square feet; construction cost: $230 per square foot; photography: Asa Gilmore. Hawkins loaded as much storage as possible into custom cabinets that climb step-by-step with a hot-rolled steel stair until they level out at counter height. The smooth steel also works as a low-maintenance backsplash that blends nicely with cast-in-place concrete counters.
2012 rada kitchen / merit Appleton Living Kitchen by Minarc, V…
2012 rada kitchen / merit Appleton Living Kitchen by Minarc, Venice, Calif. principals in charge/interior designers: Erla Dögg Ingjaldsdóttir, Assoc. AIA, and Tryggvi Thorsteinsson, Assoc. AIA, Minarc; general contractor: Core Construction, Apple Valley, Calif.; project size: 449 square feet (kitchen); construction cost: $300 per square foot; photography: Art Gray. With upper cabinets limited to a single end wall, the kitchen opens to light and views along its two outside walls.
residential architect July 2006 K = B Studio: Culinary Connecti…
residential architect July 2006 K = B Studio: Culinary Connection architect/landscape architect: Prentiss Architects, Seattle; general contractor: Ravenhill Construction, Friday Harbor, Wash.; resources: bathroom fittings and fixtures: Lacava; dishwasher: Miele; kitchen fittings and fixtures: Dornbracht; oven: Wolf; patio doors: Quantum Windows & Doors; refrigerator: Sub-Zero photography: Jeff Mason. Architect Geoffrey Prentiss often incorporates layers into his architecture. It's a device he picked up while living and studying in Japan, and one that still resonates in his work. Using various natural wood species within the main house, for example, creates an intimate, casual mood.
The architect designed indoor and outdoor kitchens with a strong…
The architect designed indoor and outdoor kitchens with a strong flow and visual connection between them. Indeed, indoors and out are tightly linked throughout the plan.
Residential Architect March-April 2013 Case Study: Kafka Reside…
Residential Architect March-April 2013 Case Study: Kafka Residence, La Jolla, Calif. Architect Safdie Rabines Architects, San Diego; General contractor: Beacham Construction, La Jolla; Project size: 300 square feet; Construction cost: Withheld. At the Kafka Residence by Safdie Rabines Architects, living, dining, and kitchen areas share a single, open space that merges with an elevated deck.
Viera Photographics
The La Jolla, Calif., project presents the lofty outlook of a cl…
The La Jolla, Calif., project presents the lofty outlook of a cliff dwelling.
The urge to cook and eat outside has been around since humankind first discovered that, sushi aside, using fire to sear a bird or fish makes it taste better and last longer. Fully-equipped and covered outdoor kitchens or indoor kitchens with disappearing exterior walls both allow homeowners to feed that primal craving. In addition, these mutable spaces fulfill increasingly popular demands from custom clients for year-round outdoor living spaces.
The accompanying slideshow features outdoor kitchens sheltered from sun, rain, and wind as well as indoor kitchens that can be completely exposed to those same elements. The designers and builders of these projects share insights on how to make an indoor/outdoor kitchen functional and feel good. Industry pros agree that you have to create a room with a wide-open feeling and the ability to be enclosed. Plus, linking indoor and outdoor spaces with strong, seamless connections visually and physically increases the size and usefulness of a kitchen.
The best techniques used to produce kitchens that bridge the gap between afternoon picnic and elegant dinner party can be seen in all of these projects. Keeping floor levels and materials the same strengthens an indoor-outdoor bond and makes spaces seem larger. Take that philosophy up the walls or onto the ceiling and continue those finishes beyond the kitchen area. Along the same lines, using traditionally outdoor materials inside and vice versa also enhances the room’s indoor-outdoor ambiance.
More practical tips include using outdoor-rated appliances along with durable, weather-resistant materials like stainless steel, stone, concrete, and marine-grade woods. The use of mostly natural materials also amps up the outdoor atmosphere. It’s also essential to give occupants some exposure to sunshine and moonlight while keeping shading in mind through good orientation and siting. Making indoor-outdoor rooms usable year-round also means adding climate control such as radiant-heated floors, ceiling fans, or an oversized fireplace.