The renovation of an existing cottage included a 630-square-foot…
The renovation of an existing cottage included a 630-square-foot addition—family room down, master suite above–a detached garage with a planted roof (visible in foreground), and updated outdoor spaces.
Phil Bond
The renovation of an existing cottage included a 630-square-foot…
The renovation of an existing cottage included a 630-square-foot addition—family room down, master suite above–a detached garage with a planted roof (visible in foreground), and updated outdoor spaces.
Phil Bond
The new garage, with board-and-batten siding, was designed to lo…
The new garage, with board-and-batten siding, was designed to look like a pool house.
Phil Bond
The glassy addition’s second level was stepped back to avoid o…
The glassy addition’s second level was stepped back to avoid overwhelming the tight lot.
Phil Bond
The compact swimming pool terrace includes board-formed concrete…
The compact swimming pool terrace includes board-formed concrete retaining walls and built-in seating.
Feldman Architecture
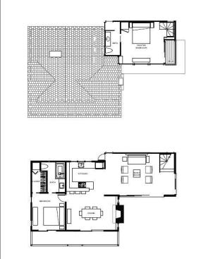
The floorplans after renovation.
If California invented the outdoor room, this one is as civilized as they come. Its terraced living spaces are a response to the tight, sloped lot and a whole-home renovation that included a two-story addition and detached garage. Architect Jonathan Feldman’s compact addition—a 300-square-foot family room and master suite above—overlooks a pool and stepped terraces made of gravel and board-formed concrete, which were designed by owner and landscape designer Loretta Gargan. The new garage sits beyond the pool at the lowest part of the property, and its lushly planted roof expands the garden visually.
“There are few precedents for good-looking garages, but many for good-looking pool houses,” Feldman says. “We thought of it like a little pool house, and because you’re always looking down on it, the green roof makes the garden feel bigger. It also helped us negotiate the building with the neighbors.” The naturally stained board-and-batten siding matches that on the house. Our judges admired the way the spaces “invite you outside and nest into the landscape.”