Town Mountain Residence, Asheville, N.C.

Merit / Outdoor Spaces

1 MIN READ
“This is the kind of space that is particularly appealing,” admired the judges. ”It imparts the notion of being able to sit outside in cool mountain breezes with a big stone fireplace for warmth.” Architect Duncan McPherson is pleased but not surprised by the jury’s reaction. His firm’s philosophy is centered on indoor-outdoor connections and extending functional living space beyond the interior for at least nine months of the year.
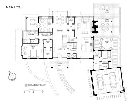
Accomplishing such strong connections is mostly about ease of access. If outdoor spaces are well located near primary interior living areas then they’ll get used. Including visual links—in this case the exterior stone flows inside as the fireplace/TV wall—between inside and out also strengthens that bond. Although the premise seems simple, it can be complicated as it was with the design of this mountain retreat. The design team placed the covered terrace off to the side of the open public spaces in order for both living areas to have unobstructed panoramas across the mountains.
That view happens to be to the north, so tucking the terrace into the side of the house also thwarts the worst of the strong northerly gusts. “That very primal instinctual to have a sense of outlook as well as refuge was a big part of creating a protected space,” McPherson says. “You’re buffered from the wind and nestled into the hillside, which is very much a part of the psychology of architecture and adds an emotional element that’s very ingrained into our psyche.”

About the Author

Shelley D. Hutchins

Shelley D. Hutchins, LEED AP, writes about residential construction and design, sustainable building and living, and travel and health-care issues.

Upcoming Events

  • Build-to-Rent Conference

    JW Marriott Phoenix Desert Ridge

    Register Now
  • Builder 100

    Dana Point, CA

    Register Now
  • Protecto Wall VP Standard Installation Video

    Webinar

    Register for Free
All Events