Delicate Building in the Tucson Desert

This Tucson vacation home presents an indoor-outdoor design that defers to its delicate site

4 MIN READ

Building a new house in the fragile desert landscape requires thought and precision. Contrary to the stereotype of barren land covered in endless sand, deserts contain a colorful variety of plants and animals. Tucson, Ariz., natives Teresa Rosano and Luis Ibarra, founders of Ibarra Rosano Design Architects, understand the inherent beauty that should be treated with extreme care when building in virgin desert settings. One recent project required a particularly delicate approach. “This site was bisected by a drainage channel that connects to the main wash for the area,” explains Rosano. “Separating the cars from the house via a bridge allowed us to keep that channel intact.”

Not only did they save the drainage channel—a key element to recovering precious rainwater—but they went further by restoring the native landscape surrounding the house. The architects also left the site’s topography intact and carefully controlled any damage that might occur during construction. “We revegetated in a way that encourages animals to repopulate this site,” Rosano says. “We also preserved existing topography by cantilevering the house off the west side, plus that area underneath provides habitat for animals migrating down the wash.”

Letting nature do the work

Ibarra and Rosano approach every project by thinking about the site and building as one entity. The resulting houses, like this one, take advantage of the desert’s splendor and utilize the drastic climate to generate comfortable spaces inside and out. An added bonus of this holistic design is less reliance on man-made energy by optimizing natural resources such as sun and wind.

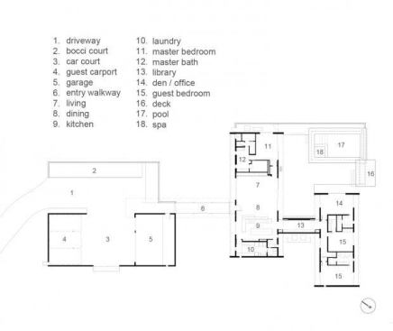
Currently, the structure’s western elevation offers the best views of distant mountains, however, orienting the house that direction would be the worst option for solar heat gain. In addition, houses eventually will be built in that direction. Rosano and Ibarra designed the house as two bars that run along the southeast axis for optimum solar orientation and what will be the best views.

“The volumes are staggered,” Rosano says, “so from the living room you can see past the guest wing to the pool.” A narrow library connects the two parallel bars plus provides shade and privacy for the adjacent courtyard. Ceiling heights were kept low to generate subtle horizontal forms that don’t overwhelm the landscape. This move also allows for better control over the sun through the use of overhangs. Another benefit of this low-slung form is that from the outdoor areas occupants can see over the top of the house to the ridgeline beyond.

Directing views, fire, water, and wind

Outdoor spaces are minimal to let the indigenous landscape be the standout views. A simple concrete pool deck links the cozy courtyard with a floating cube on the periphery of the site. “When we first went out to the site, the clients didn’t think they had much of a city view,” Rosano says, “but we went back with a ladder and realized that if you’re just a few feet higher then distant views get much stronger, so the cube allowed us to have an elevated platform where you can see the city.”

The cube has a steel armature that can be covered for shading, but so far the clients have preferred to leave it as a stark object. “It really gives you a sense of being in the wide open desert but with a sense of enclosure,” Rosano describes. The location on the property’s far southeast corner means it gets early sun, but not prolonged western exposure. A concrete base absorbs heat during the day and radiates it back at night. The steel frame focuses the view, making this a great spot for dinner under the stars while gazing at far-off city lights.

In the more sheltered, intimate courtyard sitting area next to the house, warmth is supplied by an elongated gas fire feature. The stones surrounding the fire element conceal a grate, which is placed to capture runoff from the hardscaped courtyard and pool deck and direct the water into the drainage channel. Geometric cut-outs in the hardscape are filled with architectural plantings and also make good use of rainwater. Connecting interior spaces to the courtyard, pool, and cube are floor-to-ceiling sliding glass doors, which sit along the southern elevations and stand opposite large operable windows in north-facing walls. The primary expanses of glass were thoughtfully placed to maximize cross ventilation and natural light without unwanted heat gain. “Cool air falls down from the mountains with predominant winds from the southeast,” Rosano says. East and west elevations are more solid, offering targeted views via precise openings. One vertical slot window frames a saguaro cactus that was protected during construction, while a slice of horizontal fixed glass outlines the mountain ridge to the west. Everything about the design works toward bringing glimpses of that desert landscape inside while preserving the reason for building here in the first place.

About the Author

Shelley D. Hutchins

Shelley D. Hutchins, LEED AP, writes about residential construction and design, sustainable building and living, and travel and health-care issues.

Upcoming Events

  • Sales is a Sport: These Tactics Are the Winning Play

    Webinar

    Register for Free
  • Dispelling Myths and Maximizing Value: Unlock the Potential of Open Web Floor Trusses

    Webinar

    Register for Free
  • Building Future-ready Communities for Less

    Webinar

    Register for Free
All Events