dog team too, san antonio

renovation / grand

1 MIN READ

lake/flato architects, san antonio

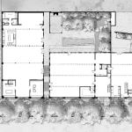
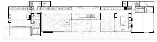
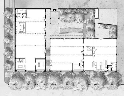
Leave it to Lake/Flato Architects to transform a pair of old warehouses into a gracious home and studio. Known for its modern, industrial take on regional architecture, the firm jumped at the chance to renovate the two downtown San Antonio buildings, which are linked by a common outdoor entryway and courtyard. Principal in charge Ted Flato, FAIA, project architect Bob Harris, AIA, and the client agreed to use the larger of the structures to house her graphic design business, while the smaller one would serve as her residence. They didn’t let a serious fire halfway through construction daunt them—instead, they turned it into an opportunity. “The fire burned the entire roof section of the residential portion off,” says Flato. “It turned out to be a great gift. None of us really loved the ceiling the way it was before.” Inspired by another factory building they’d seen, the architects opted to try out a sawtooth roof structure to bring in northern light. “When you walk into the living space, you see nothing but sky,” says Harris. “The new roof structure makes the house come alive.” The judges appreciated the firm’s respectful treatment of the existing fabric. “There’s a clarity of strategy for reusing the shell and organizing the spaces within it,” said one.

principal in charge: Ted Flato, FAIA, Lake/Flato Architects
project architect: Bob Harris, AIA, Lake/Flato Architects
general contractor: Bill Cox, Cox Construction, San Antonio
project size: Studio site size: 0.5 acre
construction cost: Withheld
photographer: Paul Hester

About the Author

Upcoming Events

  • Protecto Wall VP Standard Installation Video

    Webinar

    Register for Free
  • How Right-Sized Plumbing Saves Money, Saves Water, and Protects Wellness

    Webinar

    Register for Free
  • Building Careers from the Ground Up: The IUPAT Floor Covering Apprenticeship and Training Program

    Webinar

    Register for Free
All Events