Residential

Fitting In With Both the Past and the Present

3 MIN READ

In designing some of the most distinctive new homes in Athens, Ga., Lori Bork Newcomer looks to the past. Her projects celebrate the traditional architecture found in the city’s older neighborhoods, while incorporating high-performance amenities and a modern aesthetic.

Newcomer’s creations employ centuries-old sustainable building techniques such as passive solar orientation, long and narrow shotgun-style floor plans, an emphasis on exterior shading, plenty of windows, and natural ventilation. “I try to pick up on a lot of the old passive systems that were used over 100 years ago here and have largely been forgotten because we rely on active systems,” says the principal of Bork Architectural Design. To that end, most of her projects include large front porches, operable skylights, and multiple covered outdoor spaces including old-fashioned sleeping porches.

Her focus on sustainability and her modern approach have struck a chord with residents of the progressive college town. Since Newcomer moved to the area in 2005, her residential projects have gained attention for their clean lines, contemporary styling, and comfortable living spaces.

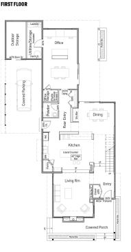
For Newcomer’s own home, just steps from downtown, she considered the architectural context of her eclectic Pulaski Heights neighborhood, filled with early-1900s cottages that once housed cotton oil factory workers as well as industrial buildings and factories that now serve as quaint artist studios and shops. To start, she designed a deceptively compact front façade, blending strong horizontal and vertical modern lines with a traditional gabled form and a large front porch, indicative of nearby cottages. Tennessee fieldstone, stucco, and white clapboard siding echo the native and traditional materials used in many of the area’s oldest homes.

The back of the home houses the master suite, sleeping porch, and Newcomer’s studio, and is covered by a butterfly roof, which helps to downplay its size—twice that of most of the homes in the area. “We didn’t want to be seen as the monster on the block,” she says.

Inside, the glass-clad front gable provides natural light to the open floor plan’s kitchen, living, and dining areas. Locally sourced, reclaimed heart pine floors and salvaged wood from an old shed on the lot further connect the house to its site. Large windows provide natural lighting as well as passive solar heating in winter months.

Newcomer emphasized breathability in her wall system of 2-foot-by-6-foot exterior walls with blown-in recycled-content cellulose. She coated the exterior with highly permeable Sto stucco and specified mineral-based paints rather than latex for interior walls. “The higher breathability is more like traditional adobe structures,” she says. “It helps the house to regulate itself better.”

Thanks to careful caulking and sealing, reflective metal roofing, Energy Star–labeled windows, and a solar hot water system, utility bills are roughly the same as they were in Newcomer’s previous house that was a third of the size.

Low-flow fixtures conserve water inside the house, and outside a 1,100-gallon cistern captures rainwater for irrigation. All other runoff is handled on site, via three rain gardens, and the front yard, which has no turf, is largely used as a vegetable garden. The drought-tolerant landscaping has remained vibrant even during Georgia’s current dry spell, Newcomer notes.

To achieve LEED Platinum certification for a low $125 per square foot, Newcomer and her husband had to make a few trade-offs. They limited pricey reclaimed wood flooring to the main living space and went with exposed concrete floors elsewhere. They also gave up on finding a quartz countertop that would fit their budget and used granite instead. “That is my biggest complaint about countertops—most eco-friendly options are cost-prohibitive,” she says.

Newcomer also acted as general contractor, which reduced construction costs by about 15 percent. She decided to go for third-party certification after sitting for the LEED-AP exam in 2009.

“Honestly, we were surprised that we got to LEED Platinum just by doing what made sense for us,” she recalls. “We didn’t do anything big like PVs or geothermal systems, we just did a lot of little things right.”

Click here for a profile of Bork Architectural Design.


About the Author

Jennifer Goodman

Jennifer Goodman is a former editor for BUILDER. She lives in the walkable urban neighborhood of Silver Spring, Md.

Upcoming Events

  • Protecto Wall VP Standard Installation Video

    Webinar

    Register for Free
  • How Right-Sized Plumbing Saves Money, Saves Water, and Protects Wellness

    Webinar

    Register for Free
  • Building Careers from the Ground Up: The IUPAT Floor Covering Apprenticeship and Training Program

    Webinar

    Register for Free
All Events