Light washes into the apartment’s center through an existing s…
Light washes into the apartment’s center through an existing skylight and a sculptural stair opening to the second-floor roof deck.
Frank Oudeman
Downstairs, sleek white kitchen cabinetry extends into the livin…
Downstairs, sleek white kitchen cabinetry extends into the living area, where it drops to a low seating shelf with hidden drawers. A drop-down movie screen disappears into the ceiling slot.
Frank Oudeman
The most dramatic gesture is a white steel staircase replacing t…
The most dramatic gesture is a white steel staircase replacing the old one in the apartment’s center. The floating stair allows sunlight to wash down over both walls through cantilevered, wenge-topped treads and thin vertical railings.
Frank Oudeman
The architect swapped out the dining nook’s two double-hung wi…
The architect swapped out the dining nook’s two double-hung windows with clean-lined casements and customized another opening that frames a tree limb.
Frank Oudeman
Light and views pass through the bedroom’s transparent shower
Frank Oudeman
Removing a dropped ceiling revealed the underside of the steeply…
Removing a dropped ceiling revealed the underside of the steeply pitched roofline, and near its peak, a skylight. The left storage bank holds a colorful sneaker collection.
Frank Oudeman
Ipe pallets, cut around skylights, create conversation space on …
Ipe pallets, cut around skylights, create conversation space on the roof.
Frank Oudeman
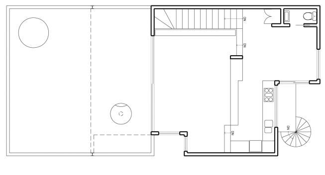
The apartment occupies the building’s top one-and-a-half stori…
The apartment occupies the building’s top one-and-a-half stories.
Courtesy studio SUMO
Construction plans.
Courtesy studio SUMO
Greg Powers
To transform this dark 100-year-old Washington, D.C., row house,…
To transform this dark 100-year-old Washington, D.C., row house, architect Janet Bloomberg moved the existing staircase and topped it with a new skylight. The stairwell’s lack of solid walls — steel cables separate the space and extend to the metal frame above — allows light into the surrounding spaces. The overall effect is clean and simple, making better use of the floor plan. 2011 Remodeling Design Awards (September) Whole-House Remodeling $250,000 – $500,000 Kube Architecture, Washington, D.C.
Before: The living room prior to the remodel. 2011 Remodeling …
Before: The living room prior to the remodel. 2011 Remodeling Design Awards (September) Whole-House Remodeling $250,000 – $500,000 Kube Architecture, Washington, D.C.
Greg Powers
After: The living room after the remodel. 2011 Remodeling Desi…
After: The living room after the remodel. 2011 Remodeling Design Awards (September) Whole-House Remodeling $250,000 – $500,000 Kube Architecture, Washington, D.C.
Before: The home's original staircase was located just off the l…
Before: The home's original staircase was located just off the living room. 2011 Remodeling Design Awards (September) Whole-House Remodeling $250,000 – $500,000 Kube Architecture, Washington, D.C.
Greg Powers
After: The new staircase was moved to the middle of the house an…
After: The new staircase was moved to the middle of the house and its transparent design allows light to reach deep within the remodeled home. 2011 Remodeling Design Awards (September) Whole-House Remodeling $250,000 – $500,000 Kube Architecture, Washington, D.C.
Before: The original kitchen was in the rear of the home's main …
Before: The original kitchen was in the rear of the home's main level. 2011 Remodeling Design Awards (September) Whole-House Remodeling $250,000 – $500,000 Kube Architecture, Washington, D.C.
Greg Powers
After: The kitchen was moved to the center of the main level in …
After: The kitchen was moved to the center of the main level in what used to be the dining room. 2011 Remodeling Design Awards (September) Whole-House Remodeling $250,000 – $500,000 Kube Architecture, Washington, D.C.
Greg Powers
The skylight above the staircase is the centerpiece of the new c…
The skylight above the staircase is the centerpiece of the new construction as it welcomes light into a home that had been dark for more than a century. 2011 Remodeling Design Awards (September) Whole-House Remodeling $250,000 – $500,000 Kube Architecture, Washington, D.C.
Greg Powers
The use of glass walls, an open floor plan, and steel cables ass…
The use of glass walls, an open floor plan, and steel cables assure that this home will always have an abundance of natural light pouring in from above. 2011 Remodeling Design Awards (September) Whole-House Remodeling $250,000 – $500,000 Kube Architecture, Washington, D.C.
Greg Powers
There is no mistaking the majesty of the simple and sleek master…
There is no mistaking the majesty of the simple and sleek master suite at the front of the second level. 2011 Remodeling Design Awards (September) Whole-House Remodeling $250,000 – $500,000 Kube Architecture, Washington, D.C.
Greg Powers
The master bath has a spalike elegance and is artfully “hidden…
The master bath has a spalike elegance and is artfully “hidden” behind door No. 3 among the closets. 2011 Remodeling Design Awards (September) Whole-House Remodeling $250,000 – $500,000 Kube Architecture, Washington, D.C.
Greg Powers
The family room in the rear of the revamped row house spills out…
The family room in the rear of the revamped row house spills out into the small backyard via a series of folding glass doors. This space originally was occupied by the kitchen. 2011 Remodeling Design Awards (September) Whole-House Remodeling $250,000 – $500,000 Kube Architecture, Washington, D.C.
Ethan Kaplan
For this 1960s-era house in San Francisco’s Noe Valley neighbo…
For this 1960s-era house in San Francisco’s Noe Valley neighborhood, Alex Terry, AIA, and Ivan Terry gut the interiors, keeping the home’s shell and floor structure. A dark outdoor entry stair was enlarged to form a pocket of light and air in the center of the house and a new skylight over the interior stair makes the space feel bright.
residential architect, March-April 2010 Choy Residence, San Francisco Terry & Terry, San Francisco
Ethan Kaplan Photography
An expanded exterior stair becomes a funnel for natural light. …
An expanded exterior stair becomes a funnel for natural light. residential architect, March-April 2010 Choy Residence, San Francisco Terry & Terry, San Francisco
Ethan Kaplan
A new ipe skin redefines the front elevation (shown) as well as …
A new ipe skin redefines the front elevation (shown) as well as the back of the house. residential architect, March-April 2010 Choy Residence, San Francisco Terry & Terry, San Francisco
Courtesy Terry & Terry Architecture
Before its renovation, the house failed to connect with its back…
Before its renovation, the house failed to connect with its backyard. residential architect, March-April 2010 Choy Residence, San Francisco Terry & Terry, San Francisco
Ethan Kaplan
Alex and Ivan Terry created a sense of continuity by bringing th…
Alex and Ivan Terry created a sense of continuity by bringing the ipe inside the house to rooms such as the kitchen/dining/living space. residential architect, March-April 2010 Choy Residence, San Francisco Terry & Terry, San Francisco
Ethan Kaplan Photography
A top-floor skylight pulls daylight into the interior stairwell….
A top-floor skylight pulls daylight into the interior stairwell. residential architect, March-April 2010 Choy Residence, San Francisco Terry & Terry, San Francisco
Ethan Kaplan
Generous windows allow for light and views in spaces such as the…
Generous windows allow for light and views in spaces such as the master bath. residential architect, March-April 2010 Choy Residence, San Francisco Terry & Terry, San Francisco
Courtesy Terry & Terry Architecture
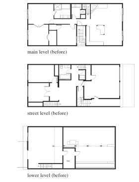
The home's floor plans before the renovation. residential arch…
The home's floor plans before the renovation. residential architect, March-April 2010 Choy Residence, San Francisco Terry & Terry, San Francisco
Courtesy Terry & Terry Architecture
The home's floor plans after the renovation. residential archi…
The home's floor plans after the renovation. residential architect, March-April 2010 Choy Residence, San Francisco Terry & Terry, San Francisco
Rien van Rijthoven
San Francisco-based architect Craig Steely brought light and air…
San Francisco-based architect Craig Steely brought light and air to this renovated early 1900s Victorian building with large panes of glass openings. The design team added a third level for the kitchen/living/dining area and a south-facing deck and sod patch. Now the entry staircase from downstairs leads to the second floor, where frosted glass panels separate the small foyer from the office and a 22-foot street-facing window brings precious light to four workstations. residential architect June 2008 Beaver Street Reprise, San Francisco Craig Steely, San Francisco
Rien van Rijthoven
Frosted glass doors permit light into the architect’s studio s…
Frosted glass doors permit light into the architect’s studio space, but slide to provide privacy. residential architect June 2008 Beaver Street Reprise, San Francisco Craig Steely, San Francisco
Rien van Rijthoven
The third floor features generous outdoor space and a small sod …
The third floor features generous outdoor space and a small sod patch. residential architect June 2008 Beaver Street Reprise, San Francisco Craig Steely, San Francisco
Rien van Rijthoven
Craig Steely and his team used a ukulele maker for the kitchen c…
Craig Steely and his team used a ukulele maker for the kitchen cabinets. residential architect June 2008 Beaver Street Reprise, San Francisco Craig Steely, San Francisco
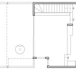
The first-level floor plan. residential architect June 2008 B…
The first-level floor plan. residential architect June 2008 Beaver Street Reprise, San Francisco Craig Steely, San Francisco
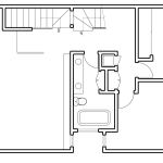
The second-level floor plan. residential architect June 2008 …
The second-level floor plan. residential architect June 2008 Beaver Street Reprise, San Francisco Craig Steely, San Francisco
Paul Warchol Photography
Architect Bob Gurney offset the narrow footprint of this Washing…
Architect Bob Gurney offset the narrow footprint of this Washington, D.C. row house with sweeping curves and dramatic diagonals that overlap and rotate around a central point. An urbane mix of materials–including concrete, steel, block aluminum, copper, limestone, Kalwall, and clear and sandblasted glass–plays off the strong shapes to create an environment that's rich in color, pattern, and texture.
2001 RADA Grand, Renovation Fitch O’Rourke Residence, Washington, D.C. Robert M. Gurney, AIA, Architect, Washington
Paul Warchol Photography
The elegant rear façade combines Kalwall and fixed glass,…
The elegant rear façade combines Kalwall and fixed glass, and steel windows and doors that bring light to the narrow house.
2001 RADA Grand, Renovation Fitch O’Rourke Residence, Washington, D.C. Robert M. Gurney, AIA, Architect, Washington
Paul Warchol Photography
Upstairs, steel panels with copper wire cloth slide on rolling l…
Upstairs, steel panels with copper wire cloth slide on rolling library hardware.
2001 RADA Grand, Renovation Fitch O’Rourke Residence, Washington, D.C. Robert M. Gurney, AIA, Architect, Washington
Row houses in urban locations are desirable places to live because they’re often within walking distance of commercial and social amenities, parks, and public transportation. The characteristic features of row houses—tube-shaped spaces with window exposure on two sides—make them dark and tunnel-like, however. The obvious strategy for bringing light into such a space is to use large glass openings and windows on the front and rear elevations. But success will be limited to the spaces and rooms immediately adjacent to the windows. In some cases, architects create an open floor plan by removing traditional interior walls, using sliding translucent panels, shoji screens, or frosted glass to permit light but maintain privacy.
Another option is to locate an open-riser staircase in the middle of the house and use a skylight to bring light into the entire home. This strategy enables shared light among all spaces, and an operable skylight creates a stack effect that controls and permits ventilation.
Surfaces and materials also can aid in distributing light throughout a row home. Stainless steel, resin panels, white ceramic tiles, stainless steel cables, glass staircases, and flooring allow light to spread farther into a row house and help prevent spaces from feeling heavy.
Here are examples of how five architects and designers managed to bring light and air into their row house projects.
The redesign of a two-floor unit in a Dutch Revival townhouse addresses spatial and acoustical concerns.
A 1960s box in San Francisco receives a green makeover
Terry & Terry Architecture remodels a nondescript 1960s house into a handsome—and sustainable—urban residence.
second take
When San Francisco-based architect Craig Steely and his artist wife, Cathy Liu, bought this early 1900s Victorian building 14 years ago, it retained few original details.
fitch o’rourke residence, washington, d.c.
Architect Bob Gurney’s clients may have a penchant for Modern architecture, but a series of angular, all-white spaces were not what they had in mind for this row-house renovation.