Heart of Stone

A lodge-style Texas home has warmth, soul, and sensible scale, thanks to restrained details and friendly materials.

2 MIN READ

The clients had visited nearly every great rustic lodge in America’s National Parks, and they wanted their new house to have a similar feel. In addition, the home had to play well with the neighbors—a mix of Georgian, Mediterranean, and cottage-style houses built during the ’20s and ’30s in Houston’s Rice University district. Likewise, the house couldn’t look like a typical suburban with a big yard.

Architect Leslie Barry Davidson used several smart tactics to create a new house with a traditional feel that she calls Shaker Lodge.

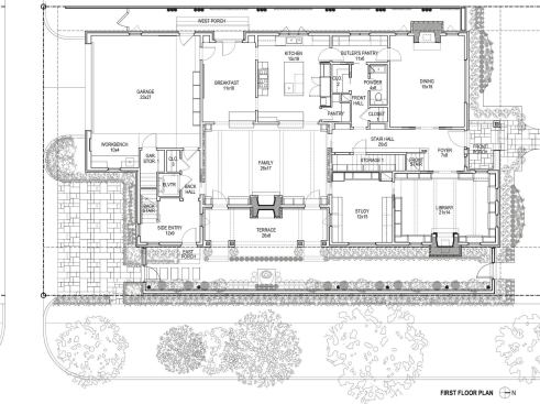
Small Setbacks By keeping the house set close to the sidewalks and back alley, Davidson maintained an urban feel. The home is clad in stucco, like others on the street, and its roof system—a combination of witch’s hat gables and a shallow hip roof at the perimeter—has wide overhangs that pull the exterior details together and help manage solar gain.

Restrained Details Keeping to a grand lodge style while avoiding a cavernous feeling took some doing. The cove molding throughout is a simple curve without a lot of detailing. Much of the home’s woodwork takes its cues from traditional Shaker style. Doorways lack casings, but each one has a jamb made from plantation-farmed Douglas fir, says Davidson. She acknowledges that such a soft wood isn’t practical for families with young kids, but for the empty-nester couple, it’s fine. Sheetrock surrounding door jambs and built-ins is bull-nosed, rather than a crisp, hard corner. This creates a friendly softness.

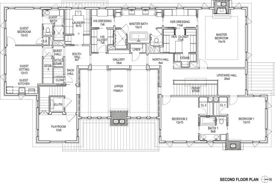
Clerestory Windows The homeowners are active empty nesters—art collectors, book lovers, and travelers—who wanted a house for friends, adult kids, and grandkids to visit. But the house needed to live like the couple wants to live. They spend most of their time in the double-height great room with clerestory windows that let light pour in.

Useful Circulation Spaces Hallways house bookshelves and art. The upstairs hall looks onto the great room, and it’s a cozy place to sit and read, with shutters that can be closed for privacy.

Custom Stonework This takes time, money, and the right subs. But wood and stone are a great combination. (Note to production builders: increasingly, off-the-shelf products can do the job well.) For this house, builder Steve Friedman of Houston-based Pyramid Constructors hired just the right team. He adds that Davidson (“I usually find fault with architects, but she’s one in a million”) was on site every few days supervising so that costly errors were avoided.

Learn more about markets featured in this article: Houston, TX.

About the Author

Amy Albert

Amy Albert is editor of Custom Home and a senior editor at Builder. She covers all aspects of design. Previously, she was kitchen design editor at Bon Appetit; before that, she was senior editor at Fine Cooking, where she shot, edited, and wrote stories on kitchen design. Amy studied art history with an emphasis on architecture and urban design at the University of Pennsylvania. She lives in Los Angeles. Write her at aalbert@hanleywood.com, follow her on Twitter @CustomHomeMag and @amyatbuilder, or join her on Custom Home's Facebook page. 

Upcoming Events

  • Protecto Wall VP Standard Installation Video

    Webinar

    Register for Free
  • How Right-Sized Plumbing Saves Money, Saves Water, and Protects Wellness

    Webinar

    Register for Free
  • Building Careers from the Ground Up: The IUPAT Floor Covering Apprenticeship and Training Program

    Webinar

    Register for Free
All Events